Terreno - LIGANJ - 145.000 EUR
| Posizione | LIGANJ, LOVRAN, Quarnaro |
| Prezzo € | 145.000 |
| Superficie | 1371 m2 |
| Distanza dal mare | 5000 m |
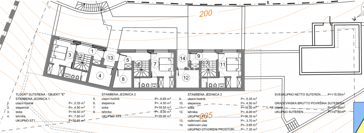
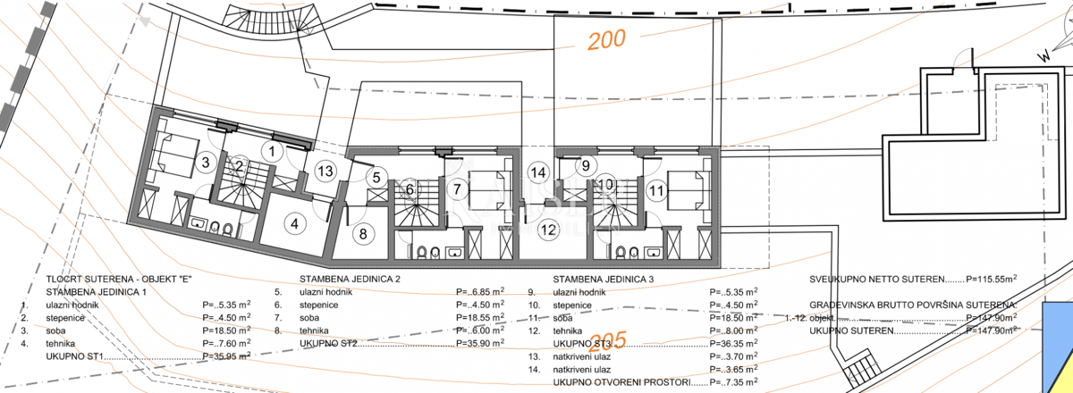
Kaiser Immobilien presenta un attraente terreno di 1.371 m², situato sulle pendici del Monte Maggiore, sopra Laurana, con una straordinaria vista panoramica sul Golfo del Quarnero, Fiume e Laurana. Per il terreno è stata rilasciata la licenza edilizia definitiva e il progetto architettonico di alta qualità prevede tre edifici residenziali in serie: due di 140 m² e uno di 125 m². Grazie alla conformazione del terreno, gli edifici sono sviluppati in verticale e gli spazi abitativi sono disposti su più livelli, con piacevoli spazi esterni che si fondono armoniosamente con l'ambiente naturale. Il terreno è scosceso e il progetto si adatta architettonicamente alla topografia per garantire la funzionalità degli spazi e una vista spettacolare e senza ostacoli. La particolarità della proprietà è l'incantevole vista panoramica, letteralmente mozzafiato: l'intero Quarnero come se fosse nel palmo di una mano. L'accesso è facile, la strada conduce direttamente al terreno e tutti i collegamenti e le infrastrutture necessarie sono disponibili nelle immediate vicinanze. Questo terreno rappresenta un'opportunità unica per realizzare un lussuoso progetto residenziale multifamiliare in una delle zone più attraenti di Laurana. Per maggiori informazioni e visite: cell. +385 91 540 4646 Kaiser Immobilien: il vostro partner per immobili di lusso in Croazia.
ID: 1272209