Casa - LIŽNJAN - 824.000 EUR
| Posizione | LIŽNJAN, Istria |
| Prezzo € | 824.000 |
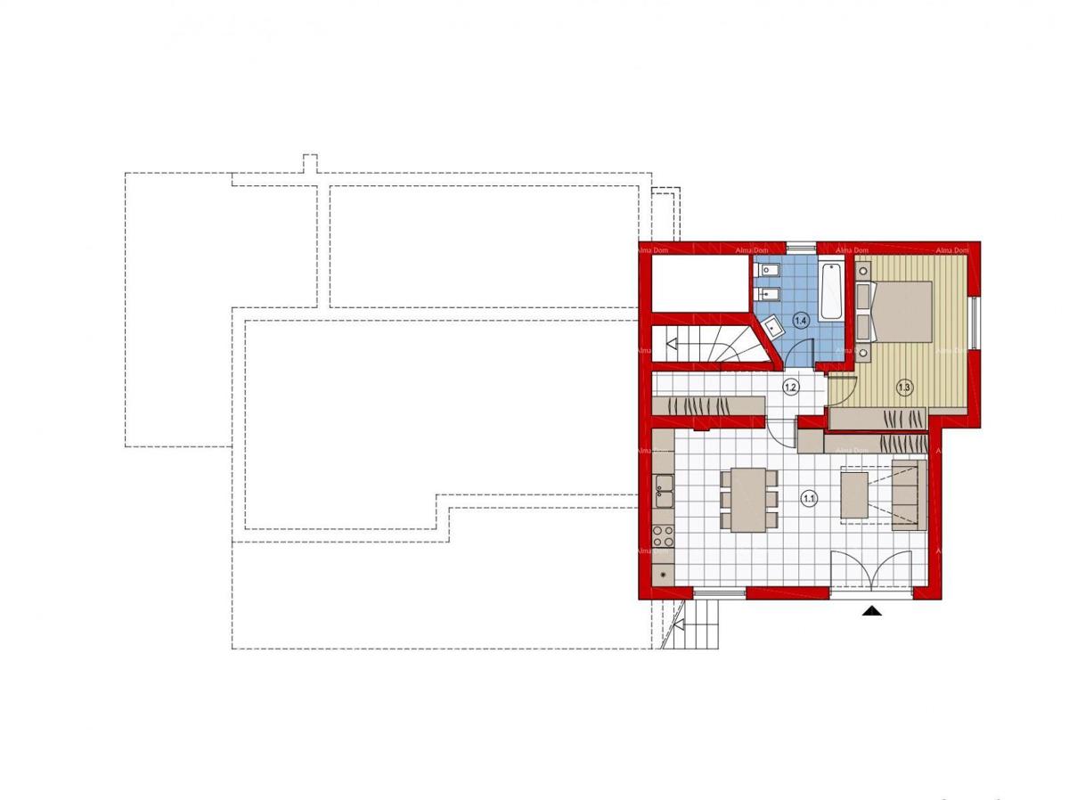
| Superficie | 350 m2 |
| Numero di camere | 5 |
| Superficie terrestre | 848 m2 |
| Bagni | 4 |
| Vicino alla spiaggia | Si |
| Distanza dal mare | 0 m |
In una posizione tranquilla nel centro di Ližnjan, si vende una casa familiare con una superficie netta di 350 m², situata su un lotto edificabile di 848 m². La casa è suddivisa in tre unità abitative, di cui una è incompleta e offre la possibilità di essere trasformata in una zona benessere, appartamento o spazio commerciale. Grazie alle sue dimensioni e alla sua disposizione, è ideale per abitazioni multigenerazionali, affitti o una combinazione di utilizzo privato e commerciale. Il ampio cortile offre spazio sufficiente per la creazione di un giardino, una piscina o ulteriori servizi, mentre la vicinanza a negozi, ristoranti e al mare rende questa proprietà una scelta perfetta per una vita di qualità o un investimento turistico. Per ulteriori informazioni, siamo a vostra disposizione: Azra +385 91 611 5706 +385 98 420 885 azra@almadominvest.com
ID: 1280648