Terreno - LOVREČICA - 450.000 EUR
| Posizione | LOVREČICA, UMAG, Istria |
| Prezzo € | 450.000 |
| Superficie | 550 m2 |
| Distanza dal mare | 0 m |
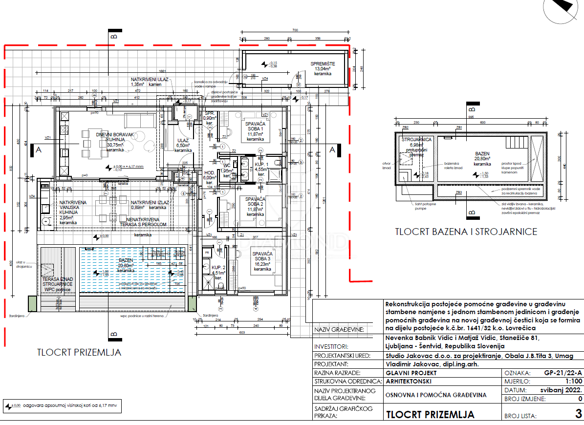
L'Istria, Umago, San Lorenzo! Questo terreno edificabile a 50 passi dal mare è un'occasione eccezionale! A 50 m dal mare si trova questo terreno edificabile di oltre 500 mq. Acqua ed elettricità sono disponibili nella vicinanza, mentre per il terreno esiste un progetto concettuale per una casa ad un piano di circa 100 m2 con 3 camere da letto e una piscina di 25 m2. Il terreno è ideale per costruire la propria casa al mare o da un interessante investimento per affitto turistico. A pochi passi si trova una bellissima spiaggia locale, il mare aperto, ristoranti di qualità, bar, una lunga passeggiata, un parco giochi per bambini e piste ciclabili, nonché vari altri servizi necessari per una vita tranquilla o una vacanza semplice. Il centro di Umago è facilmente raggiungibile in 5 minuti in auto, il centro di Cittanova è a 10 minuti in auto, l'Aquapark Istralandija è a 10 minuti in auto. Contattateci per visitare la localita' per riconoscere il tempo la Vostra opportunità per una casa al mare!
ID: 1069980