Casa - MALINSKA - 495.000 EUR
| Posizione | MALINSKA, KRK, Quarnaro |
| Prezzo € | 495.000 |
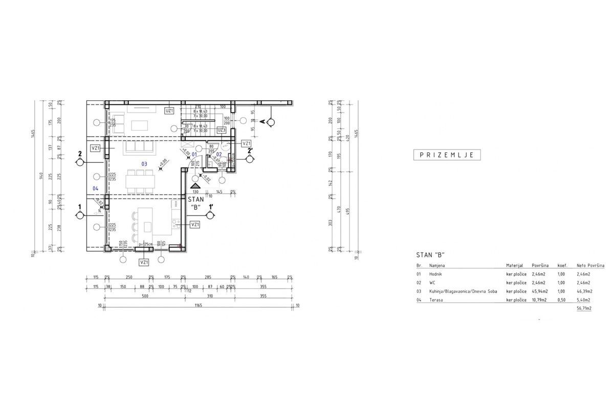
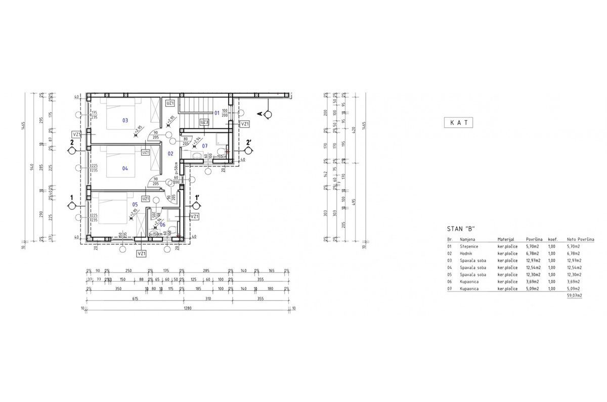
| Superficie | 116 m2 |
| Numero di camere | 3 |
| Distanza dal mare | 0 m |
L´isola di Krk, Malinska, nuova casa bifamiliare superficie 116 m2 per la vendita, con piscina e vista mare, in posizione tranquilla, 600 m dalla spiaggia. La casa e composta da piano terra con soggiorno con cucina e zona pranzo, bagno, corridoio e terrazza e primo piano con tre camere da letto, due bagni e corridoio. Costruzione e arredamento di qualita, sanitari di alta qualita, riscaldamento a pavimento, aria condizionata, due posti auto.
ID: 1214568