Casa - MALINSKA - 520.000 EUR
| Posizione | MALINSKA, KRK, Quarnaro |
| Prezzo € | 520.000 |
| Superficie | 111 m2 |
| Numero di camere | 4 |
| Superficie terrestre | 150 m2 |
| Bagni | 3 |
| Vicino ai trasporti | Si |
| Distanza dal mare | 2000 m |
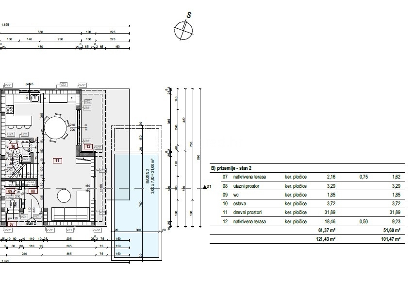
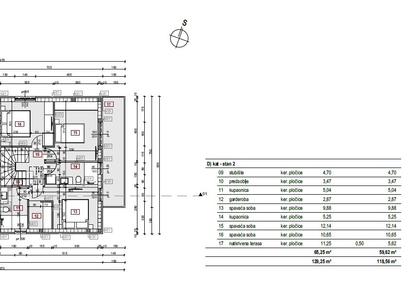
Dalla ricca offerta di immobili di qualità proposta dalla nostra agenzia nel nord dell’Adriatico, spicca una casa moderna progettata per il turismo o per uso residenziale, situata in una zona molto attraente e ricercata dell’isola di Krk. Si trova in una parte tranquilla di Malinska, a una distanza confortevole dal mare, aumentando il suo fascino sia per soggiorni di vacanza sia per affitti turistici. Questa casa moderna su due piani fa parte di un edificio bifamiliare e si estende su una superficie totale di 111 metri quadrati. Il piano terra comprende un ingresso, un bagno di servizio, un ampio soggiorno collegato alla cucina e alla zona pranzo, con accesso a una terrazza coperta. Al primo piano si trovano un corridoio, due bagni e tre camere da letto, di cui due con accesso a una terrazza coperta con vista sulla natura circostante. L’interno dell’immobile è vuoto e completamente libero da arredi. Il cortile di 150 metri quadrati arricchisce ulteriormente questa proprietà. È stato curato con particolare attenzione e comprende una piscina di 21 metri quadrati con elettrolisi, pompa di calore e solarium. Nel cortile è presente anche una doccia esterna in pietra KORTA Design e uno spazio predisposto per una cucina esterna con allacciamenti per acqua calda e fredda, scarico, elettricità e illuminazione. Nella costruzione sono stati utilizzati materiali di alta qualità, tra cui muri di recinzione in pietra e dettagli in pietra sulla facciata e intorno alla casa, sottolineando lo stile mediterraneo moderno. La casa è dotata di sistemi moderni che garantiscono comfort durante tutto l’anno. Sono presenti riscaldamento a pavimento alimentato da una pompa di calore Vaillant con serbatoio per acqua calda sanitaria da 190 litri, climatizzazione inverter Vaillant, tapparelle elettriche, infissi in PVC con vetri tripli e videosorveglianza. Il cortile offre spazio per parcheggiare due auto. La casa offre una piacevole vista sul bosco e sulla vegetazione naturale, contribuendo a un senso di privacy e tranquillità. Il venditore garantisce una documentazione di proprietà regolare e un processo di trasferimento trasparente. Il nostro team professionale vi assisterà durante l’intero processo di acquisto, inclusa la verifica legale dell’immobile, il supporto nelle trattative, il trasferimento di proprietà e l’assistenza nel passaggio delle utenze a nome dell’acquirente. Contattateci presso il nostro ufficio sull’isola di Krk per organizzare una visita e scoprire di più su questa straordinaria opportunità di investimento in una proprietà nella regione del Quarnero.
ID: 1182004