Casa - MALINSKA - 580.000 EUR
| Posizione | MALINSKA, KRK, Quarnaro |
| Prezzo € | 580.000 |
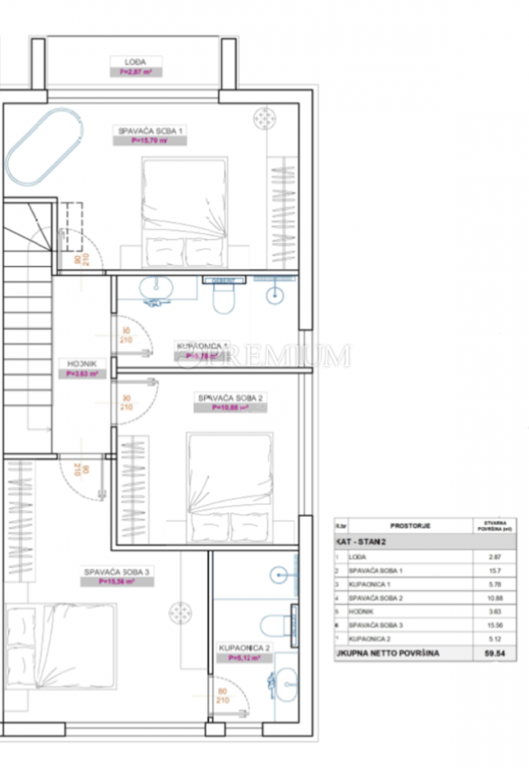
| Superficie | 121 m2 |
| Numero di camere | 4 |
| Superficie terrestre | 200 m2 |
| Bagni | 3 |
| Vicino ai trasporti | Si |
| Distanza dal mare | 2500 m |
In una zona tranquilla e piacevole di Malinska è in costruzione una moderna casa bifamiliare con piscina, con una superficie totale di 121 m². La casa si sviluppa su due livelli: piano terra e primo piano. Al piano terra si trovano un ampio soggiorno, una cucina moderna, una zona pranzo, un locale tecnico e un bagno per gli ospiti. Dal soggiorno si accede alla terrazza coperta e al giardino. Al primo piano si trovano un disimpegno, tre camere da letto e due bagni. La camera padronale dispone di un bagno privato. Il giardino ca. 200m2 con piscina di 18 m² e zona solarium è dotato di un sistema di irrigazione automatica e comprende due posti auto. La casa sarà dotata di aria condizionata in tutti gli ambienti, riscaldamento a pavimento con pompa di calore, serramenti ALU - PVC di alta qualità, ceramiche e sanitari di prima scelta, garantendo uno spazio abitativo confortevole e moderno, ideale per la vita familiare, l’uso durante tutto l’anno o come investimento immobiliare. Questa proprietà a Malinska viene venduta chiavi in mano, con completamento dei lavori previsto per luglio 2026. L’acquirente non paga l’imposta di trasferimento immobiliare poiché il venditore è soggetto IVA.
ID: 1255586