Casa - MALINSKA - 750.000 EUR
| Posizione | MALINSKA, KRK, Quarnaro |
| Prezzo € | 750.000 |
| Superficie | 139 m2 |
| Numero di camere | 4 |
| Bagni | 4 |
| Vicino ai trasporti | Si |
| Distanza dal mare | 0 m |
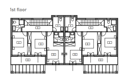
ISOLA DI KRK, MALINSKA - casa bifamiliare con piscina in costruzione Ciascuna metà della casa copre una superficie di 139,69 m² ed è progettata per offrire il massimo comfort e uno stile di vita lussuoso. Piano terra Al piano terra si trova una cucina spaziosa e modernamente attrezzata abbinata ad un elegante soggiorno, creando uno spazio aperto ideale per riunioni di famiglia e incontri con gli amici. Inoltre, al piano terra si trova un bagno per gli ospiti, dotato di sanitari di altissima qualità. Primo piano Ci sono tre comode camere da letto, ciascuna con il proprio bagno. Queste soluzioni pratiche e lussuose garantiscono privacy e comfort ad ogni membro della famiglia o ospite. Spazio esterno Ogni metà della casa è dotata di una propria piscina, che offre lo spazio perfetto per rilassarsi e godersi le calde giornate estive. Oltre alla piscina, ogni unità dispone di due posti auto. Costruzione e materiali La casa è attualmente in costruzione e il completamento previsto dei lavori è alla fine del 2025. Durante la costruzione vengono utilizzati materiali di prima classe, garantendo una costruzione di alta qualità e durata. Il riscaldamento sarà garantito mediante pompe di calore, mentre per il raffrescamento verranno utilizzati sistemi di climatizzazione multisplit, che garantiranno una temperatura ottimale durante tutto l'anno. Investitore Questo progetto è realizzato da un investitore comprovato con molti anni di esperienza nella costruzione sull'isola di Krk. La loro reputazione garantisce affidabilità e prestazioni di alta qualità in ogni dettaglio. Questa casa bifamiliare a Malinska è la casa ideale per chi cerca una combinazione di lusso, comfort e uno stile di vita moderno in un meraviglioso ambiente mediterraneo. Malinska e tutta la sua zona si chiamano Dubašnica e si trovano nella parte occidentale dell'isola di Krk. Fino al XV secolo Dubašnica era quasi priva di abitanti permanenti, così come la zona a sud di essa, quasi fino alla città di Krk. Il nome della regione deriva da roverella o roverella, perché vi sono ricchi boschi e pascoli con qualche terreno coltivabile. Dubašnica era principalmente una zona di Omišalj già prima del XII secolo, ma una parte di essa era posseduta anche dalla popolazione di Krk. Malinska, come centro di Dubašnica, un tempo era un porto isolano per l'esportazione del legno e una destinazione turistica preferita dell'aristocrazia viennese. Fu menzionato nel XV secolo come un buon ancoraggio dove si riparavano le navi in caso di forti venti, soprattutto da sud. Con l'arrivo del piroscafo nel 1866 Malinska divenne una località climatica grazie al clima mite con circa 260 giorni di sole all'anno. Oggi è una delle destinazioni turistiche più forti dell'isola, nota per le sue numerose spiagge e il settore alberghiero sviluppato, nonché per il turismo familiare. Le spiagge del comune di Malinska-Dubašnica sono collegate da numerose passerelle e formano un'entità naturale unica. La disposizione delle spiagge varia da altipiani di cemento ben curati a ingressi al mare selvaggi, rocciosi e avventurosi, ma anche molti altri luoghi nascosti e nascosti per nuotare in piccole insenature che vale la pena visitare. Le spiagge si estendono lungo la parte occidentale dell'isola di Krk: iniziano lungo la strada del Paradiso che collega Malinska e Njivice, e finiscono dietro la romantica cittadina di Porto. Malinska è una delle destinazioni più amate dalle famiglie con bambini. Oltre agli ottimi collegamenti e alla vicinanza, soprattutto a Rijeka e Zagabria, Malinska, attraverso la sua offerta di alloggi per famiglie e alberghi, spiagge e strutture ristorative a prezzi accettabili, si è affermata negli anni come una scelta TOP per molte famiglie. Inoltre la sicurezza e la tranquillità che offre Malinska sono un bonus speciale per tutti i genitori che cercano una vera vacanza. Se volete che i vostri bambini vivano la magia in vacanza, dove potete passeggiare spensierati, andare in bicicletta o trascorrere giornate in riva al mare cristallino, circondati dalla natura senza troppo rumore, visitate Malinska. Una vacanza estiva può essere molto più che prendere il sole e ascoltare le onde: le vacanze attive stanno diventando sempre più popolari: dal ciclismo, alla corsa, all'escursionismo, alla vela e agli sport acquatici. Grazie al clima mite, al mare pulito e alla rigogliosa vegetazione mediterranea, nonché all'abbondanza di sentieri e passerelle, Malinska è diventata una destinazione per molti amanti degli sport all'aria aperta e delle vacanze attive. La cultura mediterranea, come la cultura dell'isola croata, è immersa nella famiglia, nell'architettura, nella musica e nel cibo, nella sua coltivazione, lavorazione, preparazione e consumo. Poiché la popolazione locale era impegnata nella pesca, nella coltivazione di olivi, viti, fichi e pecore, la tradizione è stata coltivata e continua a vivere con orgoglio oggi. Gentili clienti, la commissione d'agenzia viene addebitata in conformità con le Condizioni Generali di Contratto www.dux-nekretnine.hr/opci-uvjeti-poslovanja
ID: 1073321