Casa - MALINSKA - 750.000 EUR
| Posizione | MALINSKA, KRK, Quarnaro |
| Prezzo € | 750.000 |
| Superficie | 117 m2 |
| Numero di camere | 4 |
| Superficie terrestre | 250 m2 |
| Bagni | 3 |
| Vicino ai trasporti | Si |
| Distanza dal mare | 150 m |
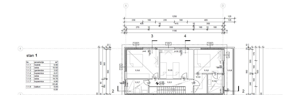
In vendita tramite la nostra agenzia nel Quarnero è disponibile una casa vacanze di grande valore e costruita con materiali di alta qualità, situata in una delle zone turistiche più rinomate e attraenti della costa adriatica – l'isola di Veglia (Krk). L'immobile si trova a Malinska, una tranquilla e affascinante località marittima, in una posizione eccellente vicino al mare. Si tratta di una casa bifamiliare a due piani, progettata in stile moderno. La casa, realizzata con un design contemporaneo, si sviluppa su due livelli per una superficie totale di 117 metri quadrati. Al piano terra si trovano un ampio soggiorno open space con cucina e zona pranzo, un bagno, un ripostiglio e una terrazza. Al piano superiore ci sono tre camere da letto, un corridoio, una cabina armadio, due bagni e un balcone. Un’atmosfera speciale è garantita dal giardino curato nei minimi dettagli, che comprende una piscina e una zona prendisole. Il cortile offre inoltre un comodo spazio per il parcheggio di due auto. La casa gode di una bellissima vista aperta sul mare, che ne aumenta ulteriormente il valore e l’attrattiva. L'immobile è soggetto al regime IVA, e il venditore garantisce documentazione regolare e un processo di trasferimento di proprietà semplice e trasparente. Il nostro ufficio sull'isola di Veglia è a vostra completa disposizione per qualsiasi ulteriore informazione. Oltre alla visita e presentazione dell'immobile, il nostro team professionale sarà lieto di assistere l'acquirente nella registrazione della proprietà presso il catasto e nel passaggio delle utenze a proprio nome.
ID: 1180809