Casa - MALINSKA - 750.000 EUR
| Posizione | MALINSKA, KRK, Quarnaro |
| Prezzo € | 750.000 |
| Superficie | 139 m2 |
| Numero di camere | 4 |
| Superficie terrestre | 821 m2 |
| Bagni | 4 |
| Vicino ai trasporti | Si |
| Distanza dal mare | 0 m |
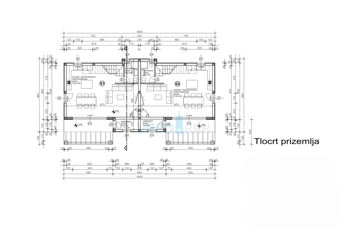
Malinska, isola di Krk, casa bifamiliare di nuova costruzione, vista mare, piscina, giardino. In vendita moderna casa bifamiliare di nuova costruzione. Si trova a Malinska, in una zona tranquilla, a soli 720 metri dal mare. La casa moderna si sviluppa su 139 m2 e offre tutto il necessario per una vita confortevole. Il piano terra della casa è composto da un ripostiglio, soggiorno open space con cucina e sala da pranzo, bagno e terrazza con accesso alla piscina. Le scale interne conducono al piano superiore, dove si trovano tre bagni e tre camere da letto, di cui due con accesso al balcone con vista panoramica sul mare. Il giardino di circa 200 m2 è curato con piante mediterranee e dotato di sistema di irrigazione automatica. La piscina misura 21 m2 (7x3,5), ampio solarium, doccia esterna e due posti auto. La casa è dotata di sistemi di climatizzazione multisplit di ultima generazione, pompa di calore, infissi in alluminio e PVC, tapparelle elettriche e riscaldamento a pavimento elettrico, garantendo un alto livello di comfort ed efficienza energetica. Il completamento dei lavori è previsto per dicembre 2025.
ID: 1196367