Casa - MALINSKA - 910.000 EUR
| Posizione | MALINSKA, KRK, Quarnaro |
| Prezzo € | 910.000 |
| Superficie | 237 m2 |
| Numero di camere | 6 |
| Superficie terrestre | 880 m2 |
| Bagni | 4 |
| Distanza dal mare | 3500 m |
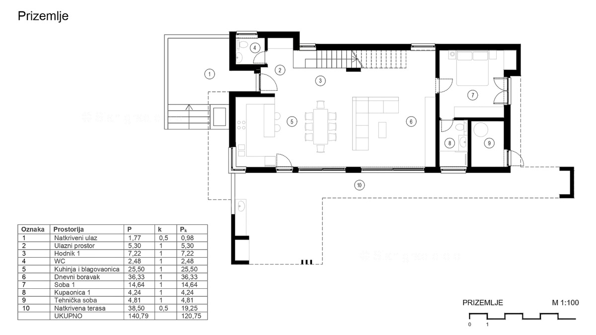
Dalla vasta offerta di proprietà nella regione nord-adriatica, l'agenzia Stan Grad Immobilien propone un'imponente villa moderna in costruzione nella rinomata regione turistica dell'isola di Krk. La proprietà è situata in una zona tranquilla, nelle vicinanze di Malinska, a poca distanza dal mare. Strutturalmente, si tratta di una casa indipendente su due piani con un ampio giardino e piscina. La casa occupa una superficie totale utile di 215,19 m². Il piano terra è composto da un ingresso, un corridoio, un WC, un bagno, una stanza con accesso alla terrazza scoperta, una stanza tecnica, una cucina con zona pranzo e un ampio soggiorno con accesso alla terrazza coperta con cucina esterna e zona barbecue. Al piano superiore della villa si trovano tre camere da letto spaziose, una delle quali con bagno privato e cabina doccia. Tutte e tre le camere hanno accesso alla terrazza esterna, mentre le altre due camere condividono un bagno. La proprietà include anche un giardino ben organizzato con un edificio accessorio di 22,5 m². Di questi, 15 m² sono destinati a una zona benessere al piano terra, comprensiva di sauna, jacuzzi e zona relax, mentre i restanti 7,5 m² sono adibiti a ripostiglio nel seminterrato dell'edificio. Il resto del giardino completamente arredato, che copre circa 504 m², è completato da una grande piscina riscaldata di 46 m² con area solarium e uno spazio lounge per il relax con un camino al centro. Nel giardino di questa casa è presente anche un'ampia zona per il parcheggio comodo di almeno due veicoli. La proprietà è caratterizzata da una costruzione di alta qualità e un'equipaggiatura di prima classe. La villa sarà dotata di infissi di qualità, pavimenti in ceramica e pietra di alta qualità, sanitari di lusso, aria condizionata a soffitto e riscaldamento a pavimento con pompa di calore. L'ambiente circostante sarà magnificamente curato con piante mediterranee e spazi verdi. Questa proprietà è di proprietà di una persona fisica e, pertanto, l'acquirente è obbligato a pagare una tassa di trasferimento immobiliare del 3% al momento del trasferimento della proprietà. Il proprietario garantisce una documentazione di proprietà e tecnica corretta, nonché la possibilità di un rapido trasferimento della proprietà al compratore. Vi aspettiamo calorosamente presso il nostro ufficio sull'isola di Krk. Se ci affidate la vostra fiducia, l'agenzia Stan Grad Immobilien sarà felice di assistervi nel trasferimento dei diritti di proprietà di questa proprietà e nel trasferimento dei relativi contratti per le utenze a vostro nome.
ID: 929408