Terreno - MALINSKA - 250.000 EUR
| Posizione | MALINSKA, KRK, Quarnaro |
| Prezzo € | 250.000 |
| Superficie | 559 m2 |
| Vicino ai trasporti | Si |
| Distanza dal mare | 1300 m |
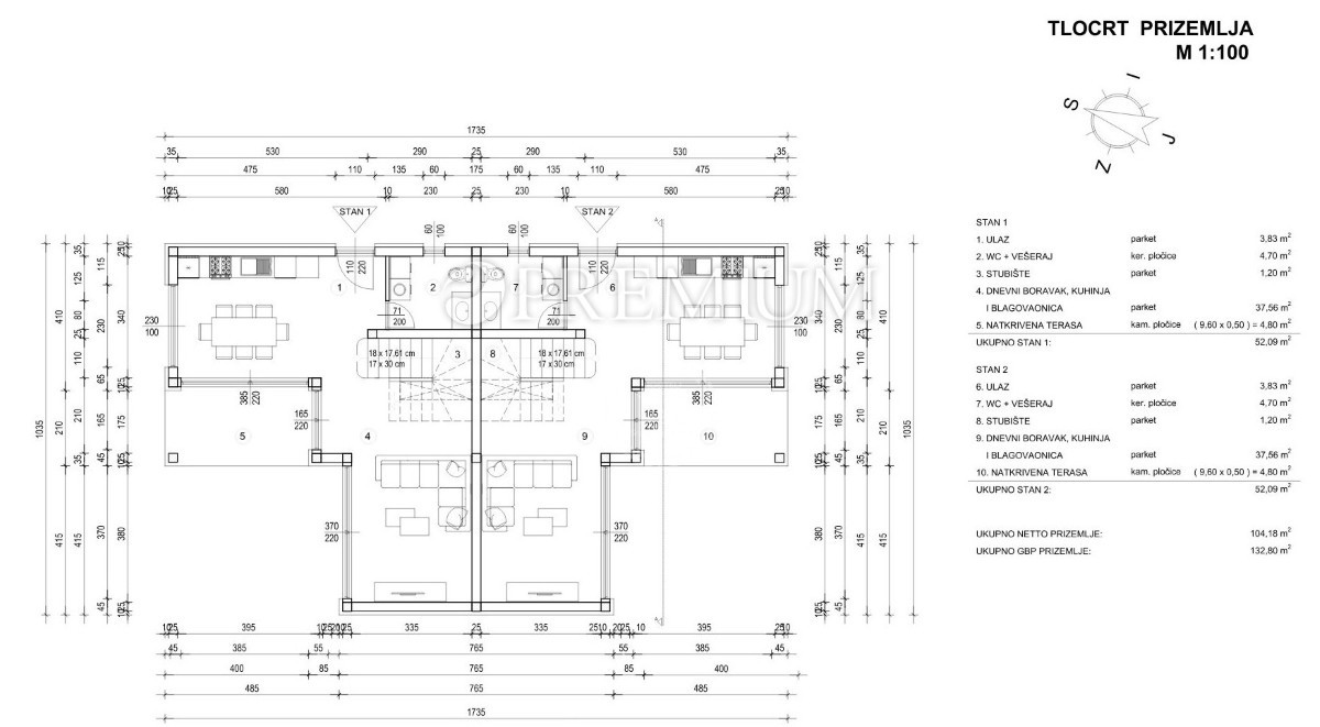
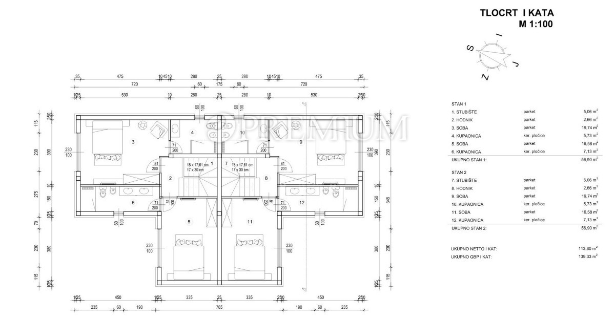
Malinska, immediate vicinanze, in vendita, terreno edificabile di 559 m² con progetto per una casa bifamiliare moderna! Secondo il progetto principale, la casa bifamiliare è composta da cantina, piano terra e primo piano, con una superficie totale di 329 m² e due unità abitative di 165 m² ciascuna. Ogni unità abitativa dispone di una cantina di circa 56 m² composta da tre ripostigli e corridoio. I piani terra di 52 m² comprendono soggiorno open space con cucina e sala da pranzo, corridoio con scala e WC con lavanderia. Dal soggiorno si accede a terrazze coperte e giardini con piscine e solarium. I piani superiori, circa 57 m², comprendono due camere da letto, due bagni e corridoi con scala. Ad ogni unità abitativa appartengono due posti auto. Posizione tranquilla vicino a tutti i servizi! È in corso la procedura per ottenere il permesso di costruzione. È possibile acquistare tre terreni edificabili con progetti per tre case bifamiliari, rendendo questa offerta un’opportunità di investimento estremamente interessante! Per ulteriori informazioni e per fissare un appuntamento per la visita, contattare Premium Nekretnine Malinska.
ID: 1208457