Appartamento - MANDRE - 274.000 EUR
| Posizione | MANDRE, PAG, Zara-Dalmazia-Nord |
| Prezzo € | 274.000 |
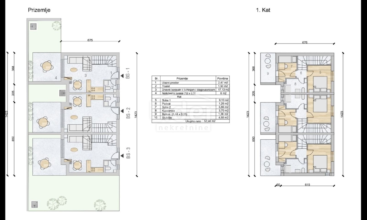
| Superficie | 63 m2 |
| Numero di camere | 3 |
| Bagni | 2 |
| Distanza dal mare | 200 m |
Appartamento B-S1, Mandre, isola di Pag Un appartamento su due piani con due camere da letto di 63,3 m2 è in vendita in un nuovo edificio situato a Mandre su Pag, a soli 200m dal mare!!! È composto da un piano terra e un piano superiore, una terrazza al piano terra, un balcone e un giardino, ed è situato in un edificio con tre appartamenti, con ingresso separato e due posti auto. Finestre e porte di alta qualità, ogni stanza ha il proprio aria condizionata, videointerfono all'ingresso, riscaldamento a pavimento nell'appartamento. Questo appartamento è composto da: - 2 camere da letto - soggiorno - cucina - sala da pranzo - bagno con toilet - toilet separato - terrazza coperta nel giardino - balcone - 2 posti auto CHIAMACI PER UNA VISITA AL +385955050362
ID: 1208846