Appartamento - MANDRE - 288.156 EUR
| Posizione | MANDRE, PAG, Zara-Dalmazia-Nord |
| Prezzo € | 288.156 |
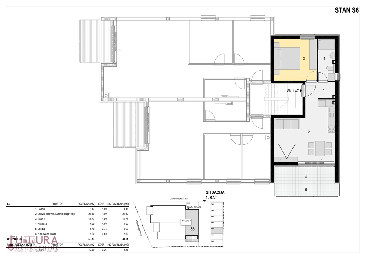
| Superficie | 48 m2 |
| Numero di camere | 1 |
| Bagni | 1 |
| Vicino alla spiaggia | Si |
| Distanza dal mare | 0 m |
Pag - Mandre, in vendita appartamento con una camera da letto di 48,84 m2 al primo piano di un edificio residenziale con un totale di otto appartamenti costruito nel 2026, costruzione di qualità, vetri doppi Schuco in tutto l’edificio, ceramica Marazzi in tutto l’edificio, rubinetteria Hansgrohe, sanitari Laufen, ecc.... Si compone di: una camera da letto, soggiorno + cucina + sala da pranzo, corridoio, bagno e terrazza. DALL’APPARTAMENTO SI GODE DI UNA VISTA APERTA SUL MARE!!! Si trova in una posizione eccellente a 15 m dal mare e dalla spiaggia (prima fila), vicino a tutti i servizi necessari per una vacanza piacevole!!! Possiede un posto auto GRATUITO. Documentazione in regola. Ingresso previsto per 04/2026.
ID: 1246840