Appartamento - MANDRE - 294.480 EUR
| Posizione | MANDRE, PAG, Zara-Dalmazia-Nord |
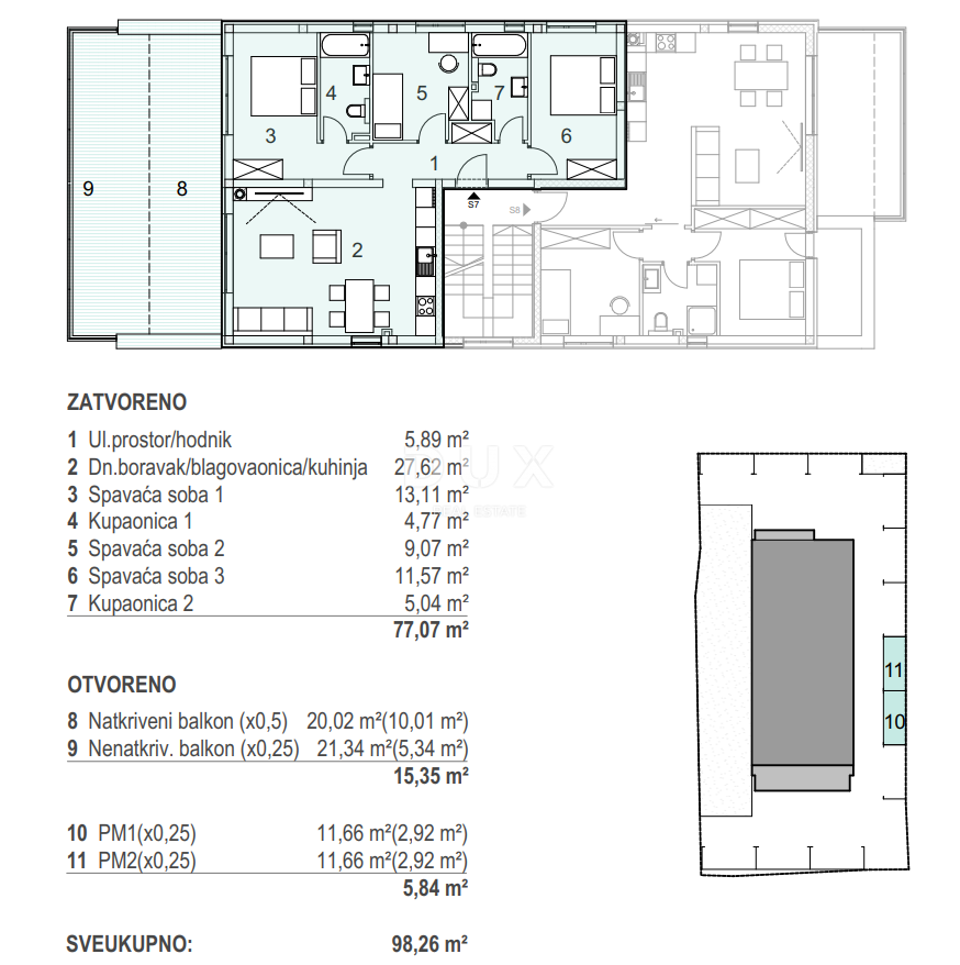
| Prezzo € | 294.480 |
| Superficie | 73 m2 |
| Numero di camere | 3 |
| Bagni | 1 |
| Distanza dal mare | 80 m |
ISOLA DI PAGO, MANDRE - Moderno edificio di nuova costruzione con vista mare a 80 metri dalla spiaggia! S8 Grazioso appartamento S8 in vendita in un edificio di nuova costruzione situato a Mandre, a soli 80 metri dalla splendida spiaggia. L'edificio comprende un totale di otto appartamenti moderni, costruiti con particolare attenzione alla qualità, al comfort e a uno stile di vita contemporaneo. L'appartamento S8 si trova al secondo piano ed è composto da due camere da letto, un bagno con riscaldamento a pavimento, un ampio soggiorno con cucina e zona pranzo e una terrazza coperta con vista mare, ideale per rilassarsi nelle calde serate estive. L'appartamento dispone inoltre di due posti auto. Questo nuovo edificio rappresenta la perfetta combinazione di design moderno e fascino mediterraneo: ideale per una vacanza, ma anche come investimento per l'affitto durante la stagione turistica. Mandre è un pittoresco villaggio di pescatori sull'isola di Pago, noto per il suo mare limpido, le spiagge ben curate e l'atmosfera tranquilla. L'isola di Pago affascina con la sua natura unica, la ricca offerta gastronomica, il formaggio e il vino di Pago e l'autentico spirito dalmata. Per maggiori informazioni e visite a questo immobile, non esitate a contattarci: la vostra nuova casa al mare vi aspetta a Mandre! Gentili clienti, la commissione d'agenzia viene addebitata in conformità con i Termini e Condizioni Generali: www.dux-nekretnine.hr/opci-uvjeti-poslovanja
ID: 1228232