Appartamento - MARČELJI - 199.000 EUR
| Posizione | MARČELJI, VIŠKOVO, Quarnaro |
| Prezzo € | 199.000 |
| Superficie | 67 m2 |
| Numero di camere | 3 |
| Bagni | 2 |
| Vicino ai trasporti | Si |
| Distanza dal mare | 0 m |
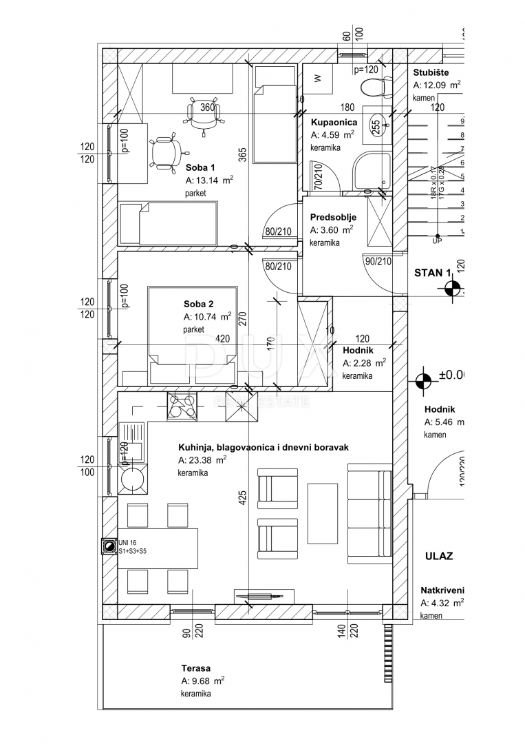
RIJEKA, VIŠKOVO - appartamento 1. (67 m2) IN UN NUOVO EDIFICIO 2R+LR, EDIFICIO URBANO VIŠKOVO! OCCASIONE! Edificio in costruzione. Il completamento dei lavori è previsto per la primavera del 2026. Il prezzo indicato include un posto auto, mentre un secondo posto auto può essere acquistato su richiesta dell'acquirente. Appartamento 1 - piano terra Ingresso: 3,60 m2 Corridoio: 2,28 m2 Cucina, sala da pranzo e soggiorno: 23,38 m2 Terrazza: 9,68 m2 · Stanza_1: 13,14 m2 · Stanza_2: 10,74 m2 Bagno: 4,59 m2 Superficie netta totale appartamento 1: 67,41 m2 L'edificio è esclusivamente ad uso residenziale. Conterrà 6 appartamenti con annessi ripostigli al piano interrato e posti auto esterni. Ci sono 6 ripostigli al piano interrato per 6 appartamenti. Ci sono 2 appartamenti al piano terra. Ci sono 2 appartamenti al primo piano. Ci sono 2 appartamenti al secondo piano. ASPETTO ESTERNO E SVILUPPO AMBIENTALE: L'edificio presenta volumi semplici e funzionali. Le facciate sono moderatamente frastagliate orizzontalmente e verticalmente. La facciata sarà rifinita con materiali moderni, in alcune tonalità di bianco e grigio. Gli infissi esterni saranno in PVC, di colore nero. Le ringhiere dei balconi saranno in vetro. Il tetto è piano. La parte non edificata del lotto edificabile sarà adibita a zona veicolare e pedonale, area di accesso all'edificio, area pedonale e area verde. La zona veicolare e pedonale e l'area di accesso all'edificio saranno asfaltate. L'area pedonale sarà pavimentata con elementi in calcestruzzo, mentre le aree verdi saranno erbose e orticole con la piantumazione di piante autoctone basse e alte. COSTRUZIONE: La struttura dell'edificio è realizzata in blocchi di mattoni, ad eccezione delle pareti del seminterrato, che sono in cemento armato. Le pareti in blocchi di mattoni sono incorniciate da cerchiature verticali e orizzontali in cemento armato. Le strutture del mezzanino sono realizzate con solette in cemento armato. Le scale e i pianerottoli sono realizzati con solette in cemento armato. Pilastri, travi e architravi sono realizzati in cemento armato. Le fondazioni e i muri di fondazione sono realizzati in cemento armato. La struttura del tetto è costituita da una soletta in cemento armato. IMPIANTO: L'edificio sarà dotato di impianti di adduzione e scarico dell'acqua sanitaria, di scarico delle acque piovane, di scarico della condensa proveniente dall'impianto termotecnico, di impianto elettrico a bassa e alta tensione (telefono e citofono) e di impianto meccanico di riscaldamento, raffrescamento e ventilazione. MICROLOCALIZZAZIONE: Il Comune di Viškovo si trova a nord-ovest di Fiume e rappresenta una delle aree più dinamiche, non solo all'interno della Regione Litoraneo-Montana, ma anche a livello statale. Il Comune di Viškovo è collegato alle strade statali tramite lo svincolo principale di Škurinje e tramite il nuovo svincolo di Rujevica (tangenziale di Fiume), che facilita il transito e l'accesso al Comune stesso. Il Comune è attraversato da 5 strade provinciali e 4 locali. Il Comune di Viškovo si trova molto vicino al confine con la Slovenia (valico di frontiera di Rupa) ed è quindi facilmente e rapidamente accessibile a sloveni e italiani, e fa affidamento in parte su Abbazia come importante centro turistico. L'insediamento di Viškovo è il centro amministrativo del Comune. Lungo la strada principale si trovano tutte le istituzioni importanti: il Comune, l'ufficio postale, la scuola elementare, gli asili nido, la biblioteca, gli istituti di assistenza sanitaria di base, le farmacie, le banche, la chiesa, l'ufficio turistico, i distributori di benzina e diversi negozi di alimentari, oltre a vari servizi. IMMOBILI IN UNA POSIZIONE UNICA E STRAORDINARIA CON UN GRANDE POTENZIALE! Sicuramente un immobile per la vita familiare, ma adatto anche come investimento turistico. Siate un passo avanti e approfittate di questa rara opportunità! Gentili clienti, la commissione di agenzia viene addebitata in conformità con i Termini e Condizioni Generali: www.dux-nekretnine.hr/opci-uvjeti-poslovanja
ID: 1248121