Appartamento - MARINIĆI - 285.000 EUR
| Posizione | MARINIĆI, VIŠKOVO, Quarnaro |
| Prezzo € | 285.000 |
| Superficie | 100 m2 |
| Numero di camere | 4 |
| Bagni | 2 |
| Vicino ai trasporti | Si |
| Distanza dal mare | 0 m |
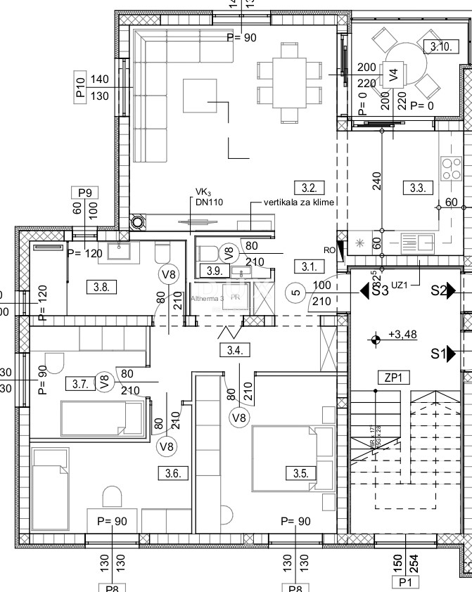
VIŠKOVO, MARINIĆI - 3R + 2° letto in un edificio di nuova costruzione di qualità Nella tranquilla via di Marinića (Viškovo) si trova un ampio appartamento al primo piano di un edificio di nuova costruzione, ideale per la vita familiare. L'appartamento occupa 100,47 m² lordi, di cui 87,8 m² di superficie abitabile, con un ripostiglio di 3,2 m². Inoltre, l'appartamento dispone di tre posti auto di 37,5 m². L'appartamento è organizzato in modo funzionale: ingresso, soggiorno collegato alla cucina e alla sala da pranzo, tre camere da letto, bagno per gli ospiti, bagno principale e loggia. La disposizione degli spazi garantisce privacy, ma anche comodi spazi comuni per la famiglia e gli amici. La posizione è ideale per una famiglia: nelle vicinanze si trovano negozi, un asilo nido, una scuola elementare, una farmacia, una stazione degli autobus, impianti sportivi e tutti i servizi principali nelle zone di Marinići e Viškovo. L'edificio segue le attuali tendenze costruttive: isolamento di qualità, materiali moderni, sistemi a risparmio energetico, carpenteria contemporanea e design degli interni elegante. Gentili clienti, la commissione d'agenzia viene addebitata in conformità con i Termini e Condizioni Generali. https://www.dux-nekretnine.hr/opci-uvjeti-poslovanja
ID: 1237356