Terreno - MASLENICA - 80.000 EUR
| Posizione | MASLENICA, ZADAR, Zara-Dalmazia-Nord |
| Prezzo € | 80.000 |
| Superficie | 500 m2 |
| Distanza dal mare | 700 m |
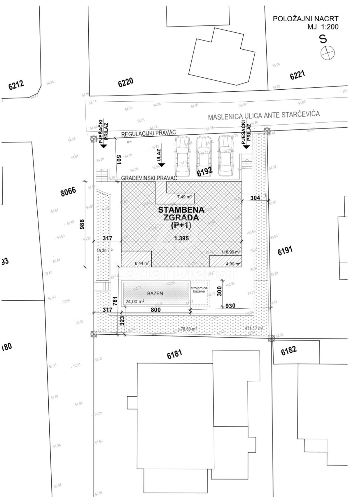
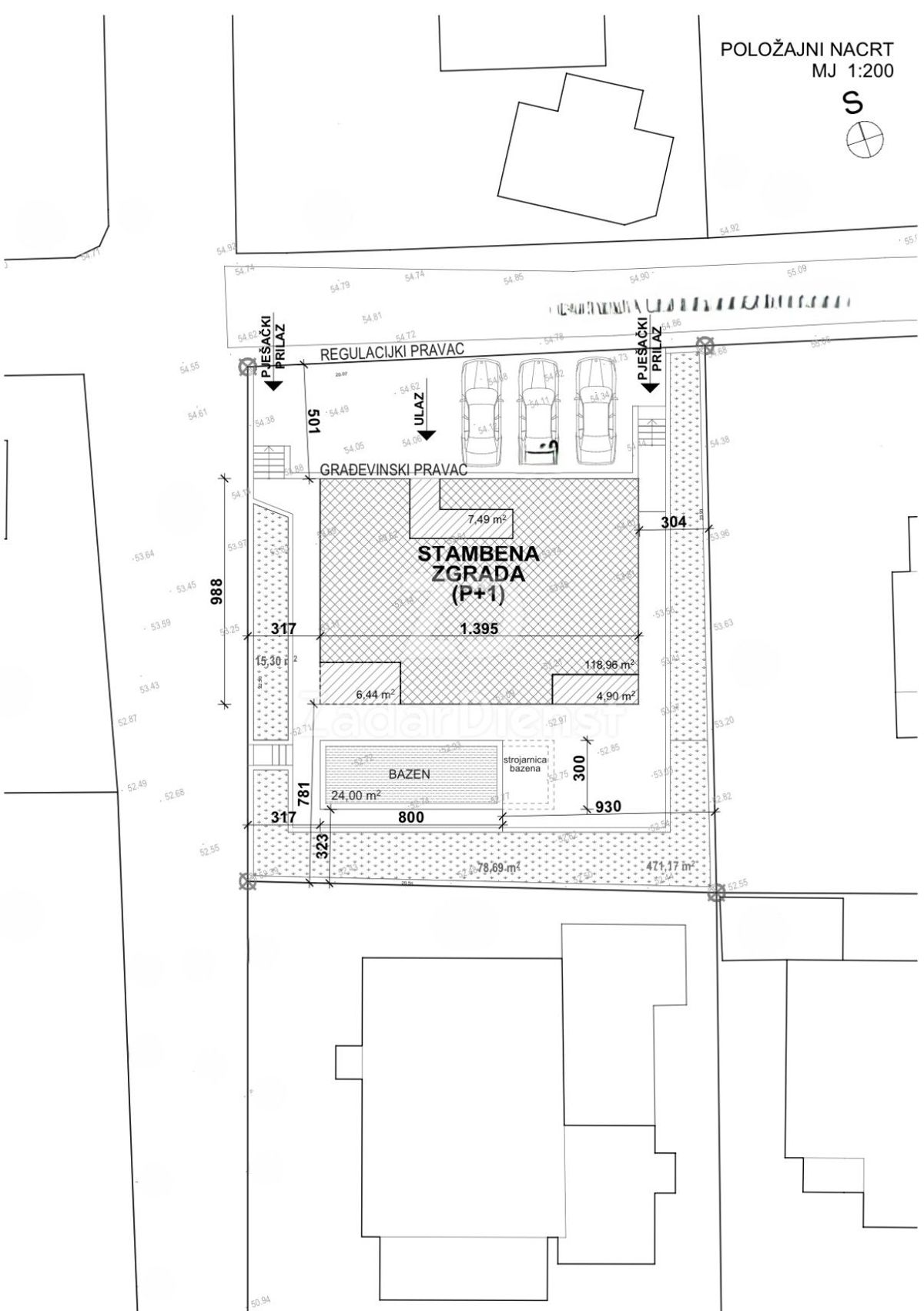
TERRENO EDIFICABILE CON PERMESSO DI COSTRUZIONE E VISTA MARE – MASLENICA In vendita attraente terreno edificabile di 500 m², situato in una zona tranquilla e molto ricercata a Maslenica. Per il terreno è stato ottenuto un permesso di costruzione valido, insieme a un progetto per la costruzione di un edificio residenziale con tre unità abitative (gruppo 2B) e piscina. Tutti gli oneri comunali sono stati completamente pagati, permettendo al futuro proprietario di iniziare immediatamente la costruzione. Il terreno ha una forma regolare, con dimensioni approssimative di 24 × 20 metri, che consentono una pianificazione molto funzionale dell’edificio e dell’area circostante. L’accesso al terreno avviene tramite strada asfaltata, mentre tutte le infrastrutture necessarie (elettricità, acqua e altri allacciamenti) si trovano direttamente accanto alla parcella. La posizione è estremamente favorevole – il terreno dista solo 300 metri dal mare in linea d’aria, ovvero circa 700 metri a piedi da una bellissima spiaggia attrezzata. Entro 500 metri si trovano tutti i servizi essenziali, tra cui negozi, bar e ristoranti, rendendo questa proprietà ideale sia per costruzione privata che per investimento turistico.
ID: 1273739