Terreno - MEDULIN - 230.000 EUR
| Posizione | MEDULIN, Istria |
| Prezzo € | 230.000 |
| Superficie | 511 m2 |
| Distanza dal mare | 0 m |
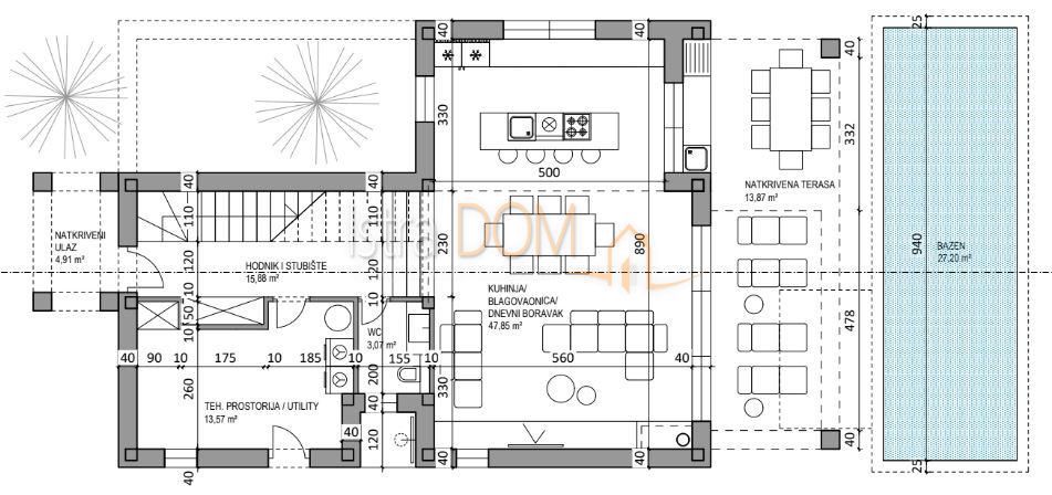
Terreno edificabile in vendita a Medolino, situato in una zona tranquilla di un nuovo insediamento con ville moderne. Il terreno ha una forma regolare ed è accessibile tramite una strada asfaltata, il che lo rende estremamente accessibile. Il terreno è corredato da un progetto con permesso di costruire valido e il contributo per le utenze è già stato versato. Il progetto previsto prevede la costruzione di un edificio a due piani con piscina, per una superficie complessiva di 200 m². La casa sarà composta da tre camere da letto, due bagni, un ampio soggiorno con cucina e zona pranzo, un ulteriore bagno, un ripostiglio, una terrazza, una doccia esterna, una cucina e una terrazza solarium. Questa proprietà rappresenta un'opportunità ideale per costruire una casa di famiglia o una casa in affitto, data la vicinanza a splendide spiagge, che distano solo 1,5 km, nonché a numerosi altri servizi. Se stai cercando il posto perfetto in cui costruire, questo terreno offre numerose opportunità di investimento. Non perdere questa opportunità unica! Contatto: +385/99-444-5435 e-mail: istradom.sasan@gmail.com
ID: 1261818