Appartamento - MIHOTIĆI - 245.000 EUR
| Posizione | MIHOTIĆI, MATULJI, Quarnaro |
| Prezzo € | 245.000 |
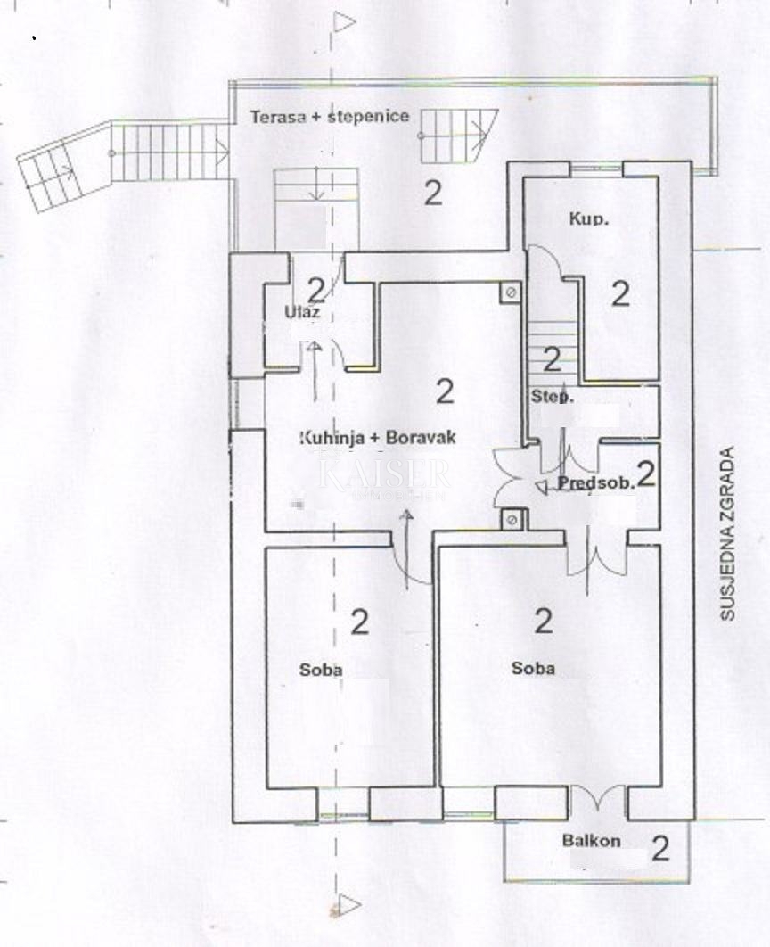
| Superficie | 72 m2 |
| Numero di camere | 3 |
| Superficie terrestre | 40 m2 |
| Bagni | 1 |
| Vicino ai trasporti | Si |
| Distanza dal mare | 2000 m |
In vendita è un grazioso appartamento di 75 m² situato a Matulji, un luogo tranquillo immerso nel verde, in una posizione ideale tra il mare e la natura. Matulji è nota per il suo piacevole ambiente abitativo, gli ottimi collegamenti di trasporto con Abbazia e Fiume e le infrastrutture sviluppate che offrono tutto il necessario per una vita quotidiana di qualità. L'appartamento è composto da un ingresso, una cucina open space con zona pranzo e soggiorno, due camere da letto, un disimpegno, un bagno, un balcone e un'ampia terrazza perfetta per rilassarsi. L'immobile viene venduto completamente arredato, compresi tutti gli elettrodomestici, ed è pronto per essere abitato immediatamente, senza investimenti aggiuntivi. L'immobile è inoltre dotato di un terreno con tre posti auto e di una quota di comproprietà sulla strada di accesso, il che ne aumenta ulteriormente il valore e la funzionalità. La documentazione è in regola: proprietà 1/1, titolo di proprietà, permesso d'uso e certificato energetico. Tutti i servizi principali sono nelle vicinanze: una scuola e un asilo sono raggiungibili in soli 3 minuti a piedi, la fermata dell'autobus è a 3 minuti e il negozio è a solo un minuto di distanza. Perfetto per famiglie, coppie o come investimento locativo. Questa proprietà unisce funzionalità, comfort e una posizione di qualità in un unico immobile: la tua nuova casa nel cuore di Matulji ti aspetta. La commissione dell'agenzia per l'acquirente è del 3% + IVA. La provvigione copre tutti i servizi connessi all'acquisto e viene corrisposta solo nel caso di acquisto di un immobile, alla conclusione del primo atto legale. Per ulteriori informazioni, contattatemi al numero 00385 976839504 o all'indirizzo e-mail: ilijana@kaiser-immobilien.hr
ID: 1180598