Casa - MOTOVUN - 125.000 EUR
| Posizione | MOTOVUN, Istria |
| Prezzo € | 125.000 |
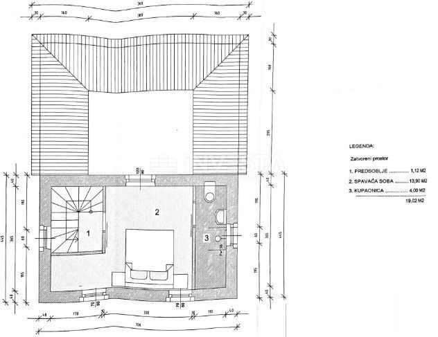
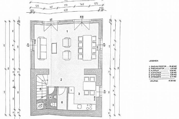
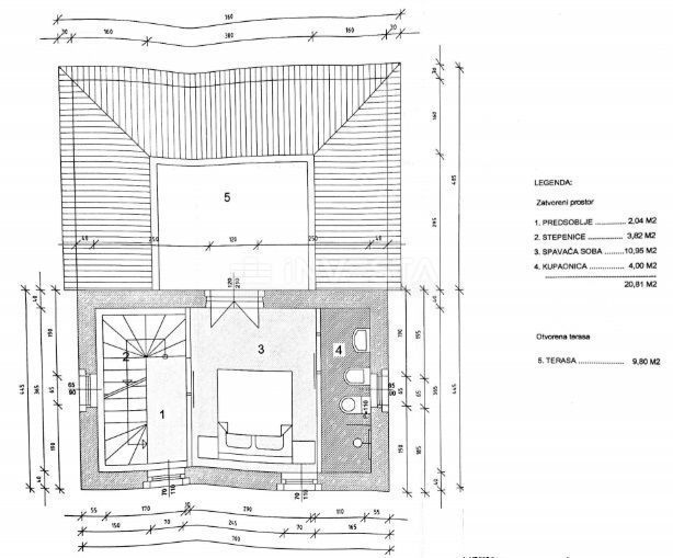
| Superficie | 70 m2 |
| Numero di camere | 3 |
| Superficie terrestre | 292 m2 |
| Distanza dal mare | 0 m |
A breve distanza dal pittoresco Motovun, è in vendita una autentica casa istriana. Ha una superficie totale di 70 m² e si sviluppa su tre livelli, situata su un terreno di 292 m². La casa si trova su una collinetta e offre una vista aperta sulla bellissima città di Motovun. Il centro di Motovun è a soli pochi chilometri di auto. La casa è dotata di collegamenti per acqua, elettricità e telefono, ed è stato realizzato un progetto concettuale per una casa di 90 m² con piscina. Il giardino è abbastanza grande da prevedere tre posti auto e una piscina. Una posizione molto interessante che offre privacy e tranquillità, pur essendo vicina a diversi affascinanti paesini istriani. Per ulteriori informazioni e visite, non esitate a contattarci.
ID: 1109272