Tutti tipi
Case
Appartamenti
Terreni
Uffici
Provincia
...
Istria
Quarnaro
Spalato-Dalmazia-Sud
Ragusa
Sebenico-Dalmazia
Zara-Dalmazia-Nord
Zagabria
Bjelovarsko-bilogorska
Brodsko-posavska
Karlovac
Koprivniško-križevska
Krapinsko-zagorska
Ličko-senjska
Međimurje
Osijek-Baranja
Požeško-slavonska
Sisačko-moslavačka
Varaždinska
Virovitiško-podravska
Vukovarsko-srijemska
Zagabria-Dintorni
Comune
...
KRK
BAKAR
KRALJEVICA
RIJEKA
FUŽINE
RAB
NOVI VINODOLSKI
MRKOPALJ
MALI LOŠINJ
CRES
DELNICE
SKRAD
VRBOVSKO
MATULJI
KLANA
VINODOLSKA OPĆINA
KASTAV
BROD MORAVICE
MOŠĆENIČKA DRAGA
ČAVLE
CRIKVENICA
ČABAR
OPATIJA
KOSTRENA
JELENJE
LOKVE
VIŠKOVO
RAVNA GORA
LOVRAN
CittÃ
...
BAJČIĆI
BARUŠIĆI
BAŠKA
BATOMALJ
BOGOVIĆI
BRZAC
ČIŽIĆI
DOBRINJ
DRAGA BAŠĆANSKA
GABONJIN
GARICA
GOSTINJAC
HLAPA
JURANDVOR
KAMPELJE
KLIMNO
KORNIĆ
KRAS
KREMENIĆI
KRK
LAKMARTIN
LINARDIĆI
LJUTIĆI
MALINSKA
MARŠIĆI
MILČETIĆI
MILOHNIĆI
MILOVČIĆI
MURAJ
NENADIĆI
NJIVICE
OMIŠALJ
OŠTROBRADIĆ
PINEZIĆI
POLJE
POLJICA
PORAT
PUNAT
RADIĆI
RASOPASNO
RISIKA
SABLJIĆI
SKRBČIĆI
SOLINE
STARA BAŠKA
SUŽAN
SVETI ANTON
SVETI IVAN DOBRINJSKI
SVETI VID DOBRINJSKI
SVETI VID-MIHOLJICE
ŠILO
TRIBULJE
VANTAČIĆI
VRBNIK
VRH
ZIDARIĆI
ŽESTILAC
ŽGALJIĆI
ŽGOMBIĆI
ŽUPANJE
Tipo
Tutti
Case
Appartamenti
Terreni
Uffici
Prezzo
da
a
Distanza dal mare (m)
da
a
Criterio
Più recenti
Meno recenti
Più costosi
Meno costosi
Cerca
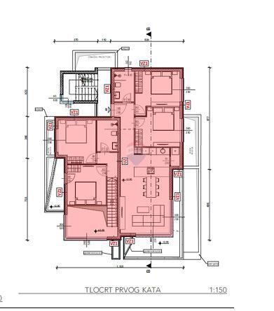
Appartamento - NJIVICE - 582.400 EUR
Previous
Next
Posizione
NJIVICE, KRK, Quarnaro
Prezzo €
582.400
Superficie
112 m
2
Numero di camere
3
Superficie terrestre
73 m
2
Bagni
2
Distanza dal mare
0 m
ID: 1213747
Invia messaggio
Nome
E-mail
Tel.
7 + 6 =
Messaggio
Invia
Annulla