Tutti tipi
Case
Appartamenti
Terreni
Uffici
Provincia
...
Istria
Quarnaro
Spalato-Dalmazia-Sud
Ragusa
Sebenico-Dalmazia
Zara-Dalmazia-Nord
Zagabria
Bjelovarsko-bilogorska
Brodsko-posavska
Karlovac
Koprivniško-križevska
Krapinsko-zagorska
Ličko-senjska
Međimurje
Osijek-Baranja
Požeško-slavonska
Sisačko-moslavačka
Varaždinska
Virovitiško-podravska
Vukovarsko-srijemska
Zagabria-Dintorni
Comune
...
SENJ
GOSPIĆ
KARLOBAG
BRINJE
UDBINA
NOVALJA
OTOČAC
DONJI LAPAC
PLITVIČKA JEZERA
LOVINAC
PERUŠIĆ
VRHOVINE
Città
...
CASKA
GAJAC
KUSTIĆI
LUN
METAJNA
NOVALJA
POTOČNICA
STARA NOVALJA
VIDALIĆI
ZUBOVIĆI
Tipo
Tutti
Case
Appartamenti
Terreni
Uffici
Prezzo
da
a
Distanza dal mare (m)
da
a
Criterio
Più recenti
Meno recenti
Più costosi
Meno costosi
Cerca
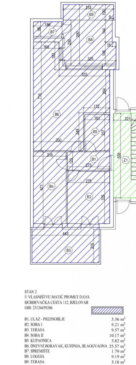
Appartamento - NOVALJA - 235.000 EUR
Previous
Next
Posizione
NOVALJA, Ličko-senjska
Prezzo €
235.000
Superficie
70 m
2
Numero di camere
3
Distanza dal mare
0 m
ID: 1184307
Invia messaggio
Nome
E-mail
Tel.
7 + 6 =
Messaggio
Invia
Annulla