Appartamento - NOVALJA - 238.000 EUR
| Posizione | NOVALJA, Ličko-senjska |
| Prezzo € | 238.000 |
| Superficie | 71 m2 |
| Numero di camere | 3 |
| Bagni | 1 |
| Distanza dal mare | 0 m |
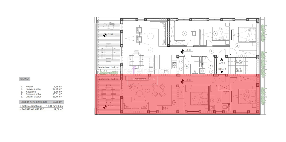
APPARTAMENTO 2 — 1° PIANO Novità sul mercato — appartamenti in costruzione! In vendita moderno appartamento bilocale in edificio residenziale urbano con 6 unità, situato in una zona tranquilla di Novalja. Dista soli 400 m dal mare e 550 m dal centro città — perfetto per un soggiorno confortevole, vacanze in famiglia o affitto turistico. Consegna prevista: autunno 2026. L’appartamento S-2 è composto da ingresso, due camere da letto, bagno e soggiorno open space con cucina e zona pranzo. Dal soggiorno si accede ad un balkone coperto di 11,34 m2. All’appartamento è assegnato un posto auto nel cortile. Progettato per il comfort con molta luce naturale, materiali di qualità e impianti moderni — ceramiche di alta qualità, infissi in PVC, aria condizionata. PIANTA E SUPERFICI Superficie commerciale totale: 71,92 m2 Superficie netta appartamento: 63,75 m2 - Ingresso — 7,45 m2 - Camera 1 — 12,78 m2 - Bagno — 6,16 m2 - Camera 2 — 10,51 m2 - Soggiorno + cucina — 26,76 m2 Esterni: - Balcone coperto 11,34 m2 (calcolati 5,67 m2) - 1 posto auto (calcolati 2,50 m2) Vantaggi - Posizione eccellente — vicinanza al mare e al centro - Costruzione moderna e distribuzione funzionale - Balcone coperto per soggiorni estivi all’aperto - Ottimo investimento per residenza personale o turismo Contattaci per una visita e presentazione del progetto — gli appartamenti in costruzione vengono prenotati rapidamente!
ID: 1231691