Appartamento - NOVALJA - 238.000 EUR
| Posizione | NOVALJA, Ličko-senjska |
| Prezzo € | 238.000 |
| Superficie | 54 m2 |
| Numero di camere | 3 |
| Bagni | 1 |
| Distanza dal mare | 0 m |
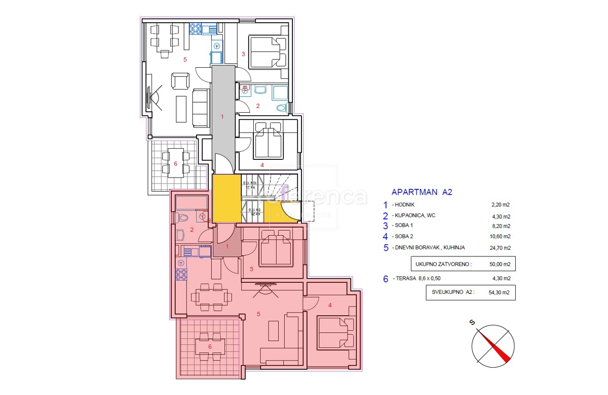
APPARTAMENTO A2 — 1° PIANO, VIA LOKVICE (NOVALJA) Moderna costruzione nuova — vista mare — a 30 metri dalla spiaggia Inizio costruzione: aprile 2026 | Fine lavori: 2027 L'appartamento A2 si trova al primo piano dell'edificio B, in un progetto di alta qualità situato in una delle posizioni più richieste di Novalja. Seconda fila dal mare, vista mare, pianta moderna e alto standard di finiture fanno di questo immobile la soluzione ideale per vacanze, residenza o investimento. Grazie all'attrattività della posizione, progetti di questo tipo a Novalja si esauriscono tradizionalmente nelle prime fasi di costruzione. PIANTA E SUPERFICI — APPARTAMENTO A2 Sup. lorda totale A2: 54,30 m2 (Superficie netta chiusa 50,00 m2 + terrazza conteggiata 4,30 m2) L'appartamento A2 comprende: - Ingresso — 2,20 m2 - Bagno + WC — 4,30 m2 - Camera da letto 1 — 8,20 m2 - Camera da letto 2 — 10,60 m2 - Soggiorno + cucina — 24,70 m2 - Terrazza — 8,60 m2 (conteggiata 4,30 m2) Incluso un posto auto, con possibilità di acquistare un posto aggiuntivo. DOTAZIONI E ALTO STANDARD - Riscaldamento a pavimento nei bagni - Tre unità clima — Wi-Fi - Infissi in PVC ad alta efficienza energetica - Persiane avvolgibili elettriche in alluminio, zanzariere - Pareti scorrevoli in vetro - Parquet o ceramica a scelta dell’acquirente fino a 35 € /m2 - Bagni moderni di produttori rinomati - Infrastruttura UTP e fibra ottica - Preparazione per la ricarica di veicoli elettrici VANTAGGI DELLA POSIZIONE - Seconda fila dal mare — circa 30 m - Vista mare aperta - Posizione esclusiva vicino alle spiagge più popolari - Distanza a piedi da tutti i servizi - Ambiente tranquillo, ordinato e sicuro - Alta domanda — eccellente opportunità di investimento Per ulteriori informazioni, prenotazioni e disponibilità degli appartamenti — contattateci liberamente.
ID: 1234374