Tutti tipi
Case
Appartamenti
Terreni
Uffici
Provincia
...
Istria
Quarnaro
Spalato-Dalmazia-Sud
Ragusa
Sebenico-Dalmazia
Zara-Dalmazia-Nord
Zagabria
Bjelovarsko-bilogorska
Brodsko-posavska
Karlovac
Koprivniško-križevska
Krapinsko-zagorska
Ličko-senjska
Međimurje
Osijek-Baranja
Požeško-slavonska
Sisačko-moslavačka
Varaždinska
Virovitiško-podravska
Vukovarsko-srijemska
Zagabria-Dintorni
Comune
...
TRNOVEC BARTOLOVEČKI
BEDNJA
SVETI ILIJA
BERETINEC
VARAŽDINSKE TOPLICE
BREZNICA
MARUŠEVEC
IVANEC
LEPOGLAVA
DONJA VOĆA
NOVI MAROF
GORNJI KNEGINEC
VARAŽDIN
PETRIJANEC
VINICA
CESTICA
DONJI MARTIJANEC
JALŽABET
LUDBREG
SVETI ĐURĐ
VIDOVEC
SRAČINEC
VISOKO
Città
...
DONJE MAKOJIŠĆE
GORNJE MAKOJIŠĆE
GRANA
MOŽĐENEC
NOVI MAROF
OREHOVEC
OŠTRICE
PRESEČNO
Tipo
Tutti
Case
Appartamenti
Terreni
Uffici
Prezzo
da
a
Distanza dal mare (m)
da
a
Criterio
Più recenti
Meno recenti
Più costosi
Meno costosi
Cerca
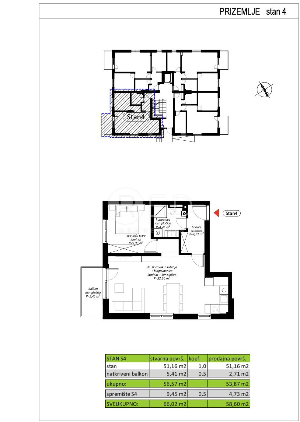
Appartamento - NOVI MAROF - 158.220 EUR
Previous
Next
Posizione
NOVI MAROF, Varaždinska
Prezzo €
158.220
Superficie
58 m
2
Numero di camere
2
Bagni
1
Vicino ai trasporti
Si
Distanza dal mare
0 m
ID: 1227296
Invia messaggio
Nome
E-mail
Tel.
7 + 3 =
Messaggio
Invia
Annulla