Ufficio - NOVI VINODOLSKI - 450.000 EUR
| Posizione | NOVI VINODOLSKI, Quarnaro |
| Prezzo € | 450.000 |
| Superficie | 173 m2 |
| Distanza dal mare | 150 m |
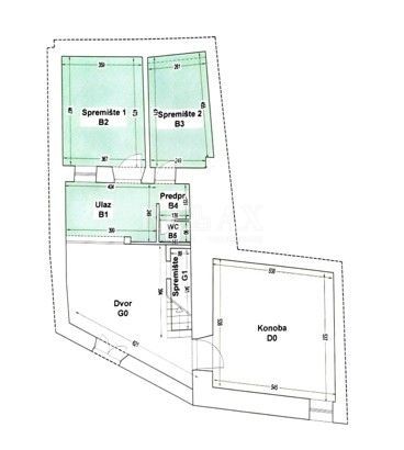
Nel cuore di Novi Vinodolski, a soli 150 metri a piedi dal mare, è in vendita un immobile che unisce tre unità funzionali – uno spazio commerciale, un appartamento in mansarda e un’area di stoccaggio con monolocale nel seminterrato. Situato in una delle zone più trafficate e ricercate della città, questo immobile rappresenta una rara opportunità di investimento per un'attività di successo e uno spazio abitativo di qualità nelle immediate vicinanze di tutti i servizi cittadini. Nel seminterrato si trovano due depositi per una superficie totale di 30 m² e un ulteriore monolocale, per una superficie complessiva di questo piano di 43,45 m². Questo spazio può essere utilizzato come magazzino, alloggio per il personale o adattato secondo le esigenze del futuro proprietario. Lo spazio commerciale su due piani si estende tra il piano terra e il primo piano per una superficie totale di 78,24 m². Attualmente è adibito a ristorante con anni di attività di successo alle spalle. Comprende la sala per gli ospiti, il bancone, due servizi igienici, la cucina e un deposito. Il locale è completamente attrezzato con tutti i dispositivi e l’inventario necessari per l’attività di ristorazione e climatizzato per il comfort di ospiti e personale. Nella mansarda si trova un appartamento di 52,02 m² composto da ingresso, camera da letto, bagno, cucina, soggiorno e ripostiglio. L’appartamento è ideale per abitazione permanente, affitto turistico o come ulteriore spazio per esigenze lavorative. Grazie alla posizione eccezionale – nel centro città, vicino a tutti i servizi principali e a pochi minuti a piedi dal mare – l’immobile ha un grande potenziale. È possibile anche l’acquisto separato dello spazio commerciale e dell’appartamento, offrendo così maggiore flessibilità agli investitori. Questa proprietà multifunzionale rappresenta un'eccellente opportunità per chi cerca una fonte di reddito stabile, una posizione attraente e la possibilità di vivere o ampliare un’attività in una delle città costiere più ambite della Croazia.
ID: 1233276