Tutti tipi
Case
Appartamenti
Terreni
Uffici
Provincia
...
Istria
Quarnaro
Spalato-Dalmazia-Sud
Ragusa
Sebenico-Dalmazia
Zara-Dalmazia-Nord
Zagabria
Bjelovarsko-bilogorska
Brodsko-posavska
Karlovac
Koprivniško-križevska
Krapinsko-zagorska
Ličko-senjska
Međimurje
Osijek-Baranja
Požeško-slavonska
Sisačko-moslavačka
Varaždinska
Virovitiško-podravska
Vukovarsko-srijemska
Zagabria-Dintorni
Comune
...
TROGIR
SPLIT
VRGORAC
BAŠKA VODA
MARINA
BRAČ
PRGOMET
SUĆURAJ
OMIŠ
BRELA
GRADAC
SEGET
SINJ
KLIS
HVAR
CISTA PROVO
ČIOVO
STARI GRAD
ŠOLTA
IMOTSKI
VIS
PODGORA
DUGI RAT
DUGOPOLJE
OTOK
JELSA
PODBABLJE
KAŠTELA
ŠESTANOVAC
VRLIKA
TRILJ
DICMO
SOLIN
LOKVIČIĆI
LOVREĆ
MAKARSKA
SUPETAR
PODSTRANA
PRIMORSKI DOLAC
LEĆEVICA
TUČEPI
ZADVARJE
ZMIJAVCI
Città
...
BORAK
ČELINA
ČISLA
GATA
LOKVA ROGOZNICA
MARUŠIĆI
MIMICE
NAKLICE
OMIŠ
PISAK
STANIĆI
SVINIŠĆE
TUGARE
ZAKUČAC
ZVEČANJE
Tipo
Tutti
Case
Appartamenti
Terreni
Uffici
Prezzo
da
a
Distanza dal mare (m)
da
a
Criterio
Più recenti
Meno recenti
Più costosi
Meno costosi
Cerca
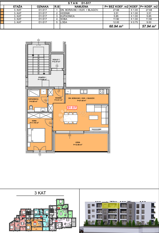
Appartamento - OMIŠ - 283.906 EUR
Previous
Next
Posizione
OMIŠ, Spalato-Dalmazia-Sud
Prezzo €
283.906
Superficie
57 m
2
Numero di camere
2
Bagni
1
Distanza dal mare
150 m
ID: 1234962
Invia messaggio
Nome
E-mail
Tel.
4 + 3 =
Messaggio
Invia
Annulla