Tutti tipi
Case
Appartamenti
Terreni
Uffici
Provincia
...
Istria
Quarnaro
Spalato-Dalmazia-Sud
Ragusa
Sebenico-Dalmazia
Zara-Dalmazia-Nord
Zagabria
Bjelovarsko-bilogorska
Brodsko-posavska
Karlovac
Koprivniško-križevska
Krapinsko-zagorska
Ličko-senjska
Međimurje
Osijek-Baranja
Požeško-slavonska
Sisačko-moslavačka
Varaždinska
Virovitiško-podravska
Vukovarsko-srijemska
Zagabria-Dintorni
Comune
...
KRK
BAKAR
KRALJEVICA
RIJEKA
FUŽINE
RAB
NOVI VINODOLSKI
MRKOPALJ
MALI LOŠINJ
CRES
DELNICE
SKRAD
VRBOVSKO
MATULJI
KLANA
VINODOLSKA OPĆINA
KASTAV
BROD MORAVICE
MOŠĆENIČKA DRAGA
ČAVLE
CRIKVENICA
ČABAR
OPATIJA
KOSTRENA
JELENJE
LOKVE
VIŠKOVO
RAVNA GORA
LOVRAN
CittÃ
...
DOBREĆ
IČIĆI
IKA
MALA UČKA
OPATIJA
OPRIČ
POBRI
POLJANE
VELA UČKA
VEPRINAC
VOLOSKO
Tipo
Tutti
Case
Appartamenti
Terreni
Uffici
Prezzo
da
a
Distanza dal mare (m)
da
a
Criterio
Più recenti
Meno recenti
Più costosi
Meno costosi
Cerca
Appartamento - OPATIJA - 1.300.000 EUR
Previous
Next
Posizione
OPATIJA, Quarnaro
Prezzo €
1.300.000
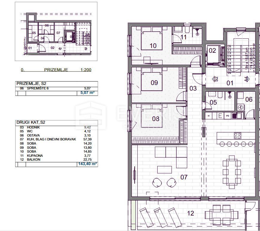
Superficie
143 m
2
Numero di camere
4
Bagni
2
Vicino ai trasporti
Si
Distanza dal mare
0 m
ID: 903878
Invia messaggio
Nome
E-mail
Tel.
9 + 7 =
Messaggio
Invia
Annulla