Appartamento - OPATIJA - 1.660.000 EUR
| Posizione | OPATIJA, Quarnaro |
| Prezzo € | 1.660.000 |
| Superficie | 238 m2 |
| Numero di camere | 4 |
| Superficie terrestre | 108 m2 |
| Bagni | 4 |
| Vicino ai trasporti | Si |
| Distanza dal mare | 500 m |
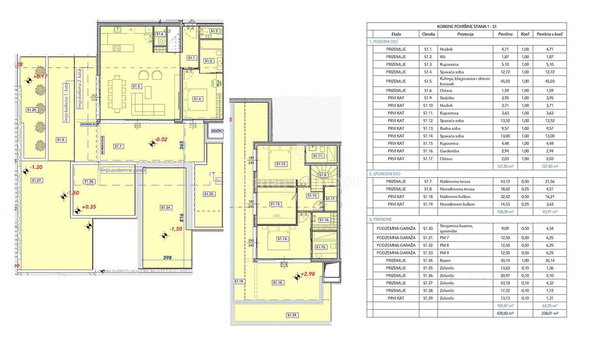
ABBAZIA (OPATIJA), LUSSO APPARTAMENTO CON PISCINA PRIVATA, GIARDINO E VISTA MARE! In vendita un lussuoso appartamento in uno splendido edificio nuovo con ascensore e garage sotterraneo situato in una attraente posizione tranquilla vicino al mare e al centro di Opatija! Questa proprietà premium offre design moderno, eleganza lussuosa, privacy e comfort, nonché una vista spettacolare sul mare e, con il suo stile architettonico moderno e i materiali più pregiati, stabilisce nuovi standard di lusso. Grazie alla sua posizione in una zona tranquilla di Opatija, godrete di un senso di privacy e pace e allo stesso tempo di una vista mozzafiato sull'incantevole costa del Mare Adriatico. APPARTAMENTO S1 • tipologia appartamento: duplex (piano terra, primo piano) • 3 camere da letto + studio, 3 bagni, 1 toilette • superficie totale dell'appartamento con parti secondarie: 420,82 m2 • superficie netta totale dell'appartamento con parti secondarie: 238,01 m2 • superficie interna dell'appartamento: 127,85 m2 • terrazza: 61,14 m2 • balcone: 46,95 m2 • giardino/verde: 108,13 m2 • 3 posti auto in garage • ripostiglio: 9,09 m2 • piscina privata: 30,14 m2 Questo bellissimo appartamento è progettato per il massimo comfort e lusso. Al piano inferiore avete a disposizione un lussuoso soggiorno con cucina e zona pranzo, una dispensa, un WC, una camera da letto con bagno privato e una spaziosa terrazza coperta con accesso al giardino e alla piscina privata - un luogo ideale per trascorrere del tempo con la famiglia e gli amici e godersi la vista del mare. Tramite una scala interna si accede al primo piano dove si trovano un corridoio, una camera padronale con bagno en suite e antibagno, un'altra camera con bagno en suite, uno studio e un ripostiglio. La camera da letto principale ha accesso ad un ampio balcone con una bellissima vista sul mare. L'appartamento dispone anche di un ripostiglio, di un locale macchine per la piscina e di 3 posti auto in garage, che vi offrono ulteriore comodità. Questa proprietà premium vi offre un incredibile spazio abitativo di lusso con attrezzature di alta qualità e una vista spettacolare sul mare, e si trova vicino al mare e alle spiagge e a soli dieci minuti a piedi dal centro di Opatija con tutti i servizi necessari , che rende la tua vita di tutti i giorni estremamente pratica e confortevole. . Abbazia, la perla dell'Adriatico, è uno dei luoghi più ricercati e desiderabili per vivere e trascorrere le vacanze in Croazia. La sua irresistibile combinazione di bellezza naturale, ricca storia e architettura e comfort moderni ne fanno una destinazione davvero straordinaria e incantevole! PREZZO Il prezzo indicato si riferisce ad un appartamento completamente rifinito chiavi in mano, senza mobili. L'IVA è inclusa nel prezzo, l'acquirente è esente dall'imposta sulla vendita degli immobili. In caso di acquisto a nome di una società registrata in Croazia, dopo l'acquisto è possibile il rimborso completo dell'IVA. Per ulteriori informazioni e per fissare un appuntamento per la visione, chiamare il numero: +385/99/320-0008
ID: 1057330