Appartamento - OPATIJA - 630.000 EUR
| Posizione | OPATIJA, Quarnaro |
| Prezzo € | 630.000 |
| Superficie | 70 m2 |
| Numero di camere | 2 |
| Bagni | 1 |
| Vicino ai trasporti | Si |
| Distanza dal mare | 500 m |
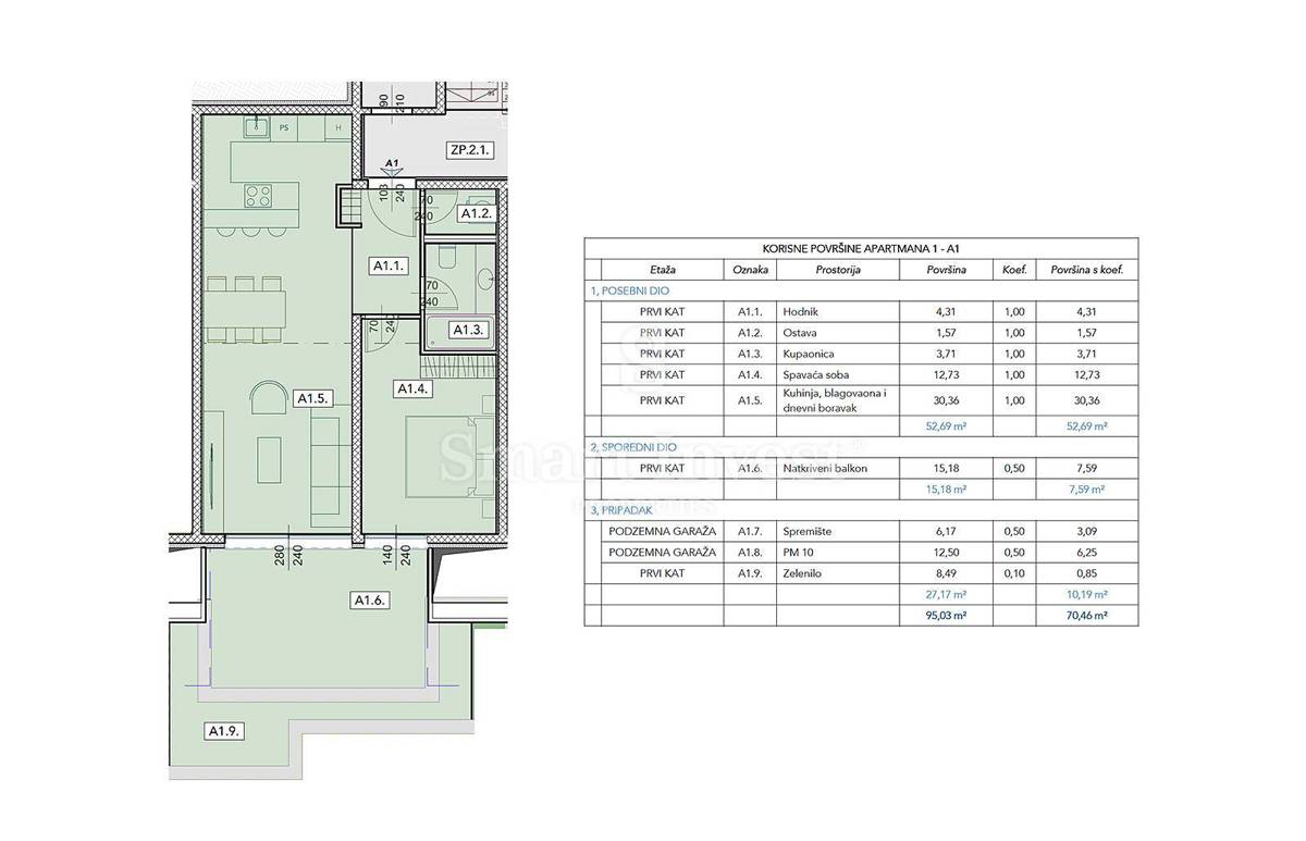
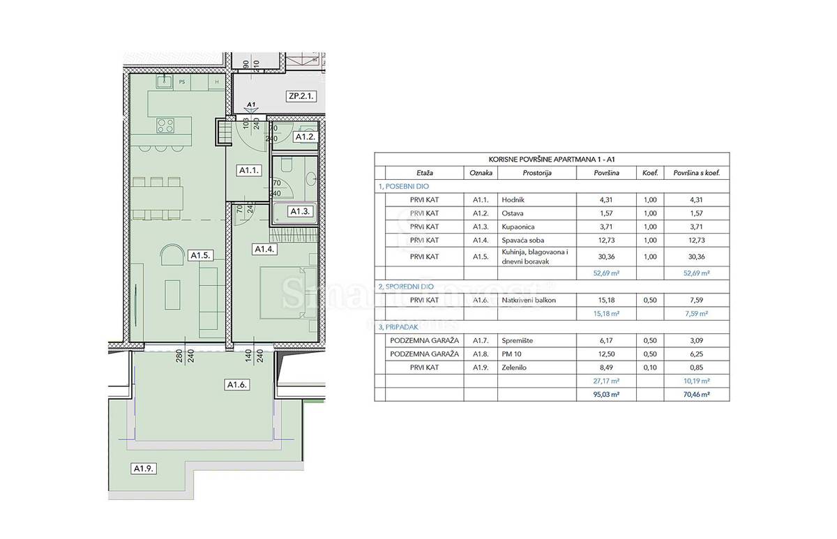
ABBAZIA (OPATIJA), LUSSO APPARTAMENTO CON BELLISSIMA VISTA MARE! Vendesi un confortevole appartamento, 1 camera da letto + soggiorno, in uno splendido edificio nuovo con ascensore e garage sotterraneo situato in un'attraente posizione tranquilla vicino al mare e al centro di Opatija! Questa proprietà premium offre design moderno, eleganza lussuosa, privacy e comfort, nonché una vista spettacolare sul mare e, con il suo stile architettonico moderno e i materiali più pregiati, stabilisce nuovi standard di lusso. Grazie alla sua posizione in una zona tranquilla di Opatija, godrete di un senso di privacy e pace e allo stesso tempo di una vista mozzafiato sull'incantevole costa del Mare Adriatico. APPARTAMENTO A1 • piano: primo piano • 1 camera da letto, 1 bagno • superficie totale dell'appartamento con parti secondarie: 95,03 m2 • superficie netta dell'appartamento con parti secondarie: 70,46 m2 • superficie interna dell'appartamento: 52,69 m2 • balcone: 15,18 m2 • 1 posto auto in garage • ripostiglio: 6,17 m2 Questo bellissimo appartamento è progettato per il massimo comfort. Hai a tua disposizione un corridoio d'ingresso, ripostiglio, bagno, camera da letto, soggiorno con cucina e zona pranzo. Il soggiorno e la camera da letto hanno accesso ad un ampio balcone, il luogo ideale per godersi una tazza di caffè e una vista spettacolare sul mare. L'appartamento dispone anche di un ripostiglio separato e di 1 posto auto in garage, che vi offre ulteriore comodità. Questa proprietà premium vi offre un incredibile spazio abitativo di lusso con attrezzature di alta qualità e una vista spettacolare sul mare, e si trova vicino al mare e alle spiagge e a soli dieci minuti a piedi dal centro di Opatija con tutti i servizi necessari , che rende la tua vita di tutti i giorni estremamente pratica e confortevole. . Abbazia, la perla dell'Adriatico, è uno dei luoghi più ricercati e desiderabili per vivere e trascorrere le vacanze in Croazia. La sua irresistibile combinazione di bellezza naturale, ricca storia e architettura e comfort moderni ne fanno una destinazione davvero straordinaria e incantevole! PREZZO Il prezzo indicato include l'IVA al 25%, in caso di acquisto da un'azienda registrata in Croazia è possibile il rimborso completo dell'IVA dopo l'acquisto. Per ulteriori informazioni e per fissare un appuntamento per la visione, chiamare il numero: +385/99/320-0008
ID: 1057766