Casa - OPATIJA - 1.700.000 EUR
| Posizione | OPATIJA, Quarnaro |
| Prezzo € | 1.700.000 |
| Superficie | 249 m2 |
| Numero di camere | 5 |
| Superficie terrestre | 657 m2 |
| Distanza dal mare | 0 m |
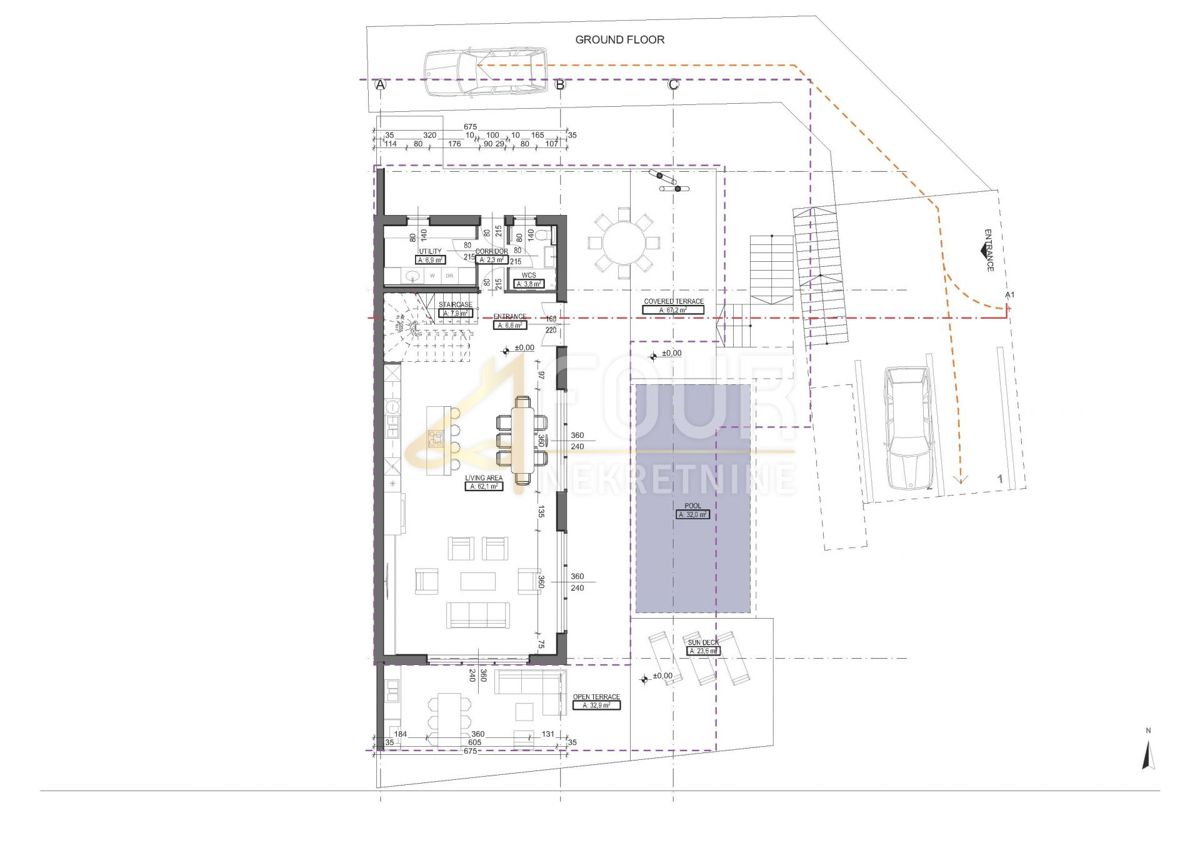
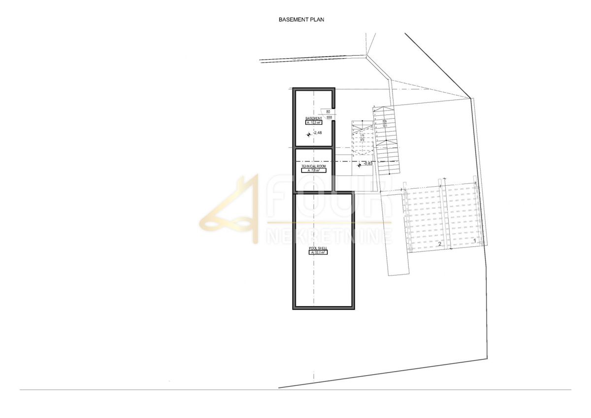
Nell'offerta c'è una nuova costruzione, una villa con piscina riscaldata, situata sopra Opatija con una splendida vista panoramica sul mare, sulla città di Fiume e sull'intero golfo del Quarnero. La superficie lorda totale della villa è di 249,10 m2 e si sviluppa su tre piani. Il piano terra della villa è composto da un ingresso, un bagno e una lavanderia sulla destra dell'ingresso, mentre la cucina, la sala da pranzo e il soggiorno si trovano sulla sinistra in un unico spazio aperto. Accanto all'ingresso ci sono le scale che portano al primo piano. La cucina è divisa in due parti, mentre la sala da pranzo e il soggiorno si trovano vicino alle finestre terrazza che si possono aprire quasi completamente, permettendo così alla luce di entrare abbondantemente durante tutto il giorno. L'altezza del piano terra è di 3,10 m, con una superficie netta di 90 m2. Il primo piano è composto da quattro camere da letto. La Camera 1 è l'unica senza balcone ed è prevista per essere una camera degli ospiti o uno studio. Ha un letto king size, armadi e bagno (18,7 m2). La Camera 2 è anch'essa sul lato destro di questo primo piano, ma ha due uscite sul balcone (19,3 m2). Le altre due camere sono sul lato sinistro. La Camera 3 ha un letto king size, armadi e bagno. Questa camera ha anche un balcone (21 m2). La Camera 4 è la camera da letto principale con letto king size, cabina armadio e bagno. Questa camera ha un balcone (25,7 m2). L'altezza del primo piano è di 3,10 m, con una superficie netta di 115 m2. La terrazza coperta è grande 35 m2. Il balcone offre una vista sul golfo del Quarnero, su Opatija e sulla città di Fiume. Tutte le camere e i bagni sono previsti per una categoria di casa 4 stelle (in caso di affitto). Spazio esterno: Il lotto è di 757 m2. Il parcheggio è situato nella parte inferiore del lotto, dove delle scale portano alla casa. La casa è al centro del lotto e circondata da verde e dalla collina Učka sul retro. Sul lato sinistro della terrazza c'è uno spazio per sedersi dove può essere collocata anche una cucina estiva e un barbecue. C'è una piscina riscaldata di 32 m2 e un solarium, insieme a 142,30 m2 di spazio aperto sulla terrazza. Seminterrato: Il seminterrato è di 10,3 m2 e si trova sotto la terrazza. La destinazione del seminterrato è come deposito per attrezzature da giardino. Accanto al seminterrato c'è una stanza tecnica per la piscina. Per tutti gli acquirenti interessati all'acquisto prima del completamento, la casa può ancora essere adattata secondo desideri individuali (entro il 1 giugno 2023). Gentili clienti, la provvigione dell'agenzia viene addebitata in conformità con le Condizioni Generali di Vendita.
ID: 936670