Casa - OPATIJA - 1.800.000 EUR
| Posizione | OPATIJA, Quarnaro |
| Prezzo € | 1.800.000 |
| Superficie | 561 m2 |
| Numero di camere | 10 |
| Superficie terrestre | 691 m2 |
| Bagni | 5 |
| Vicino ai trasporti | Si |
| Distanza dal mare | 650 m |
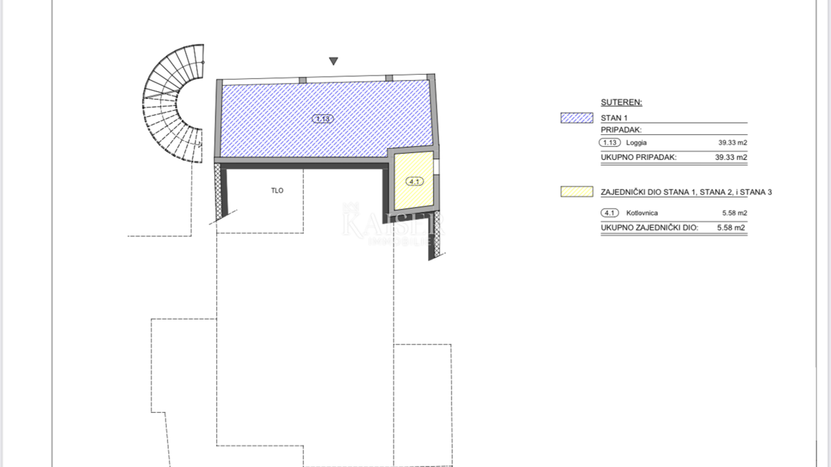
L'agenzia immobiliare Kaiser Immobilien di Opatija presenta dal suo ampio portafoglio una villa molto elegante degli anni '80 in una posizione estremamente attraente e tranquilla nelle immediate vicinanze del centro di Opatija e della costa, a soli 250 metri in linea d'aria dal mare. La villa è costruita su un pendio ed è circondata dal verde sui lati nord-est e nord-ovest. Quasi tutte le parti della proprietà offrono una vista panoramica davvero fenomenale sul mare e le terrazze e i balconi si estendono praticamente in tutte le direzioni. Oltre all'intera baia del Quarnero, i nuovi proprietari avranno nel palmo della mano anche il centro storico di Opatija con la spiaggia principale di Slatina o Rijeka. Grazie alle ampie superfici vetrate e all'orientamento quasi perfetto, quasi tutte le stanze sono piene di luce naturale e sole per tutto il giorno. L'intera villa si estende su un totale di 6 livelli. Il livello più basso è destinato ai garage: attualmente ce n'è solo uno, ma c'è spazio per almeno altri due. Ulteriori posti auto si trovano di fronte al garage. Il secondo livello è costituito da una grande loggia di 40 m2 e da una grande terrazza antistante, situata sopra il garage. Sarebbe possibile, ad esempio, chiudere la loggia con pareti in vetro e trasformarla in un giardino d'inverno o in un monolocale separato. Sull'intera terrazza antistante la loggia c'è uno spazio ideale per una futura grande piscina (visualizzazione allegata). A questo livello, c'è anche una sala caldaia e altri locali che possono essere utilizzati per le installazioni tecniche della villa o per ampliare l'area della loggia. Saliamo le scale a chiocciola fino al terzo livello della villa, al piano terra, dove si trova il primo di un totale di 3 appartamenti. La superficie abitabile netta dell'appartamento al piano terra è di 100,82 m2 e altri 123,53 m2 di terrazze appartengono ad essa. Una fantastica vista sul mare è già disponibile dalla loggia precedente, ma con ogni piano successivo la vista diventa sempre migliore. L'appartamento non è finito e la sua attuale disposizione, che in questa fase può ovviamente essere completamente modificata, comprende una cucina con sala da pranzo e soggiorno, un ampio ingresso, un bagno e una camera da letto. Ci sono anche le terrazze coperte e scoperte già menzionate e a questo livello è anche previsto uno spazio per la sala macchine. La superficie totale di questo piano è di 242,79 m2. Un'altra scala esterna ci conduce al quarto livello, il 1° piano, dove si trova un grande appartamento con 2 camere da letto e 2 bagni. Questo appartamento è più o meno finito, è completamente vuoto e non è mai stato utilizzato. L'appartamento è composto da un ingresso, disimpegno, soggiorno open concept con cucina e sala da pranzo, due camere da letto, due bagni, due terrazze coperte, balcone coperto e una terrazza scoperta. La superficie totale dell'appartamento senza parti esterne è di 126,55 m2, terrazze e balconi aggiungono altri 78,80 m2. La superficie totale dell'immobile è di 205,35 m2, la superficie netta tenendo conto dei coefficienti rilevanti è di 155,34 m2. Nell'appartamento sono stati fatti i preparativi per l'installazione dell'aria condizionata, il riscaldamento è centralizzato con gasolio e nei bagni è stato installato il riscaldamento elettrico a pavimento. Al 5° e 6° livello si trova il terzo appartamento, che è su due piani e occupa il 2° piano e la mansarda. L'appartamento ha una disposizione molto funzionale e la sua parte inferiore è composta da un ingresso, disimpegno, due camere da letto, soggiorno open space con cucina e sala da pranzo, bagno, spazio sottoscala, balcone coperto, ingresso coperto e tre terrazze scoperte. La scala interna ci conduce alla mansarda con un ampio ingresso che può essere convertito in un altro soggiorno, due camere da letto, un bagno, una terrazza e un balcone coperto. La superficie totale dell'appartamento senza parti esterne è di 179,36 m2, terrazze e balconi aggiungono altri 101,78 m2. C'è anche una parte ausiliaria che comprende una scala esterna al 2° piano con una superficie di 13,31 m2. La superficie totale di questo appartamento è di 294,45 m2, la superficie netta tenendo conto dei coefficienti rilevanti è di 221,72 m2. L'appartamento è dotato di aria condizionata, il riscaldamento è centralizzato con gasolio e i bagni hanno riscaldamento elettrico a pavimento. L'appartamento viene venduto completamente arredato (parte inferiore dell'appartamento). Nella sua configurazione attuale, l'intera villa offre 406,73 m2 di superficie abitabile netta e 356,75 m2 di terrazze e balconi. Includendo il garage e diversi posti auto, sono disponibili 800,98 m2 totali, con coefficienti associati di 561,31 m2 netti. Tuttavia, queste cifre non includono la terrazza di fronte alla loggia o nessuna delle scale esterne. La villa viene venduta anche per singoli appartamenti, ma è senza dubbio la più promettente per un investitore più serio, che la prenderebbe in gestione nel suo complesso e, con una modernizzazione relativamente poco impegnativa, sprigionerebbe il suo enorme potenziale, che risiede nella sua ampia superficie utilizzabile, nella posizione estremamente attraente e nelle viste davvero fenomenali. Costa e spiaggia: 650 m / 9 minuti a piedi Ristorante: 900 m / 13 minuti a piedi Centro di Abbazia: 1,2 km / 15 minuti a piedi Centro di Fiume: 12 km / 20 minuti Aeroporto di Fiume: 35 km / 30 minuti Aeroporto di Pola: 95 km / 60 minuti Zagabria, Lubiana: 120 km Budapest, Vienna, Monaco: 500 km La commissione dell'agenzia per l'acquirente è del 3% + IVA. La commissione copre tutti i servizi relativi all'acquisto e viene pagata solo in caso di acquisto immobiliare, alla conclusione del primo atto legale. Prezzo di acquisto dell'immobile: EUR 1.800.000,00 Commissione (3,75%): EUR 67.500,00 Investimento totale: EUR 1.867.500,00 Per informazioni più dettagliate, contattare: Jirka Nerad Telefono: +385 911 632 884 E-mail: jirka@kaiser-immobilien.hr Grazie!
ID: 1006128