Casa - PAKOŠTANE - 550.000 EUR
| Posizione | PAKOŠTANE, Zara-Dalmazia-Nord |
| Prezzo € | 550.000 |
| Superficie | 250 m2 |
| Numero di camere | 6 |
| Superficie terrestre | 1800 m2 |
| Bagni | 3 |
| Distanza dal mare | 0 m |
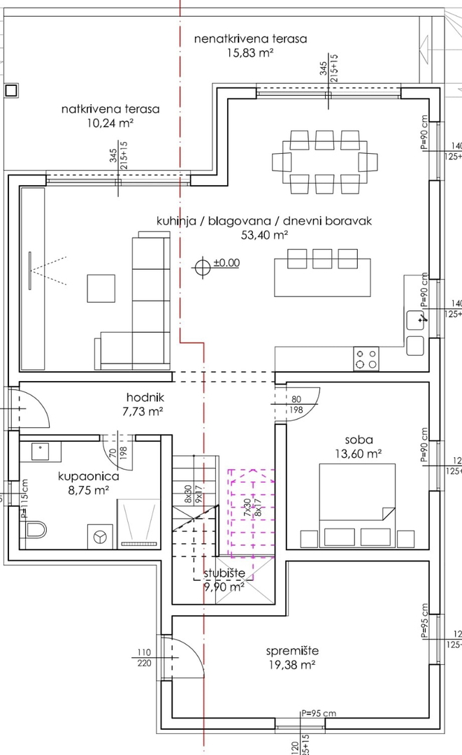
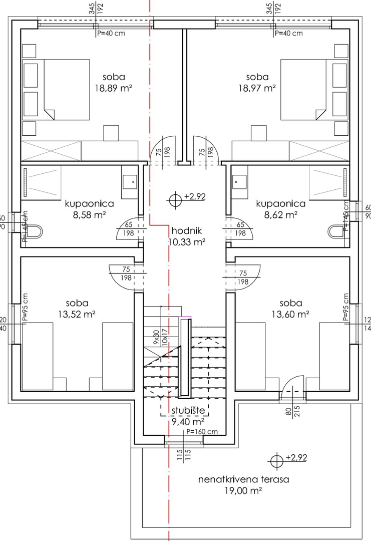
In una posizione estremamente attraente a Pakoštane, uno dei luoghi più belli della riviera di Zara, si trova questa elegante villa di nuova costruzione che rappresenta la perfetta combinazione tra architettura contemporanea e ambiente naturale. Grazie alla posizione elevata, la villa offre una vista spettacolare e aperta sul verde e sul suggestivo Lago Vrana, creando un senso unico di privacy, tranquillità e lusso. INFORMAZIONI SULL’IMMOBILE La villa è situata su un ampio terreno circondato da vegetazione mediterranea che garantisce completa privacy. La superficie netta abitabile totale è di 195 m2 ed è progettata con particolare attenzione alla funzionalità, al comfort e all’eleganza estetica. L’interno è caratterizzato da un design moderno, mentre le grandi vetrate permettono un’abbondanza di luce naturale e un’armoniosa connessione tra gli spazi interni e l’ambiente esterno. DISTRIBUZIONE DEGLI AMBIENTI Piano terra Il piano terra è concepito come spazio centrale per il soggiorno e la socializzazione e comprende: - Ampio soggiorno open space con cucina e sala da pranzo (53,40 m2) - Accesso a terrazza coperta (10,24 m2) e terrazza scoperta (15,83 m2) con piscina a sfioro - Camera da letto (13,60 m2) - Bagno (8,75 m2) - Corridoio (7,73 m2) - Ampio ripostiglio (19,38 m2) - Scala interna Primo piano Il primo piano rappresenta la zona privata destinata al riposo e al comfort, ed è composto da: - Quattro ampie camere da letto - Camera 1 – 18,89 m2 - Camera 2 – 18,97 m2 - Camera 3 – 13,52 m2 - Camera 4 – 13,60 m2 - Due bagni arredati in stile moderno - Bagno 1 – 8,58 m2 - Bagno 2 – 8,62 m2 - Corridoio (10,33 m2) - Terrazza scoperta (19,00 m2) con vista panoramica sul Lago Vrana e sul paesaggio circostante ULTERIORI SERVIZI E DOTAZIONI - Piscina a sfioro di lusso con solarium - Più posti auto all’interno della proprietà - Costruzione di alta qualità e materiali moderni - Climatizzazione completa di tutti gli ambienti - Grandi vetrate che garantiscono massima luminosità e vista aperta - Cucina moderna attrezzata con elettrodomestici di alta gamma La villa è progettata per soddisfare i più elevati standard di abitazione contemporanea, ma anche per un affitto turistico di lusso. POSIZIONE L’immobile si trova a Pakoštane, in una posizione unica con vista sul Lago Vrana. Questa posizione offre un connubio ideale tra ambiente naturale e vicinanza ai servizi urbani. Nelle immediate vicinanze si trovano le città di Zadar e Šibenik, così come i parchi nazionali Kornati e Krka e il Parco naturale Lago Vrana. La posizione è estremamente attraente per gli appassionati di nautica, amanti della natura e del tempo libero attivo, ma anche per chi cerca un ambiente tranquillo vicino al mare. Questa proprietà rappresenta un’eccellente opportunità per una vita familiare di lusso, ma anche un investimento di grande valore per un affitto turistico di alta categoria. Per ulteriori informazioni e visite contattare: M+385 99 658 46 92 E info@horizont-nekretnine.hr www.horizont-nekretnine.hr
ID: 1261648