Tutti tipi
Case
Appartamenti
Terreni
Uffici
Provincia
...
Istria
Quarnaro
Spalato-Dalmazia-Sud
Ragusa
Sebenico-Dalmazia
Zara-Dalmazia-Nord
Zagabria
Bjelovarsko-bilogorska
Brodsko-posavska
Karlovac
Koprivniško-križevska
Krapinsko-zagorska
Ličko-senjska
Međimurje
Osijek-Baranja
Požeško-slavonska
Sisačko-moslavačka
Varaždinska
Virovitiško-podravska
Vukovarsko-srijemska
Zagabria-Dintorni
Comune
...
ZAGREB
STUBIČKE TOPLICE
Città
...
BELOVAR
BIJENIK
BIZEK
BLATO
BOGDANI
BORČEC
BORONGAJ
BORONGAJSKI LUG
BOROVJE
BOTINEC
BRANOVEC
BREBERNICA
BRESTJE
BREZOVICA
BRITANAC
BUDENEC
BUNDEK
BUZIN
CENTAR
CVJETNO NASELJE
ČRNOMEREC
ČUČERJE
ČULINEC
DANKOVEC
DEDIĆI
DEMERJE
DOBRODOL
DONJA DUBRAVA
DONJE SVETICE
DONJE VRAPČE
DONJI ČEHI
DONJI DRAGONOŽEC
DONJI GRAD
DONJI TRPUCI
DRENČEC
DREŽNIK BREZOVIČKI
DUBEC
DUBRAVA
DUGAVE
ĐURĐEKOVEC
FERENŠČICA
FRATERŠČICA
GAIŠĆE
GAJEVO
GAJNICE
GLAVNICA GORNJA
GOLI BREG
GORANEC
GORNJA DUBRAVA
GORNJE VRAPČE
GORNJI BUKOVEC
GORNJI ČEHI
GORNJI DRAGONOŽEC
GORNJI GRAD
GORNJI JAREK
GORNJI LUKŠIĆ
GRAČANI
GRAD MLADIH
GRANA
GRANČARI
GRANEŠINA
GREDICE
GRMOŠČICA
HORVATI
HRAŠĆE TUROPOLJSKO
HRVATSKI LESKOVAC
HUDI BITEK
IVANJA REKA
JAČKOVINA
JAKUŠEVEC
JANKOMIR
JARUN
JELENOVAC
JEŽDOVEC
KAJZERICA
KAPTOL
KAŠINA
KLAKA
KNEŽIJA
KOBILJAK
KOZARI BOK
KOZARI PUT
KRALJEVAC
KRALJEVEČKI NOVAKI
KRUGE
KSAVER
KUPINEČKI KRALJEVEC
KUSTOŠIJA
LANIŠTE
LAŠĆINA
LUČKO
LUKŠIĆ
LUŽAN
MAKSIMIR
MALEŠNICA
MARKUŠEVEC
MARTINOVKA
MEDVEŠČAK
MIKULIĆI
MIROGOJ
MIROŠEVEC
MLINOVI
MOKRICA
NOVI ZAGREB
NOVOSELEC
ODRA
ODRANSKI OBREŽ
OPOROVEC
PANTOVČAK
PARUŽEVINA
PERJAVICA
PEŠČENICA
PETRUŠEVEC
PODSLJEME
PODSUSED
POPOVEC
PREČKO
PREKRIŽJE
PREKVRŠJE
PREPUŠTOVEC
RAVNICE
REMETE
REMETINEC
RESNIK
RETKOVEC
RIBNJAK
RUDEŠ
SAVICA
SAVICA-ŠANCI
SAVSKI GAJ
SELČINA
SESVETE
SESVETSKA SELA
SESVETSKI KOBILJAK
SESVETSKI KRALJEVEC
SIGEČICA
SIGET
SLOBOŠTINA
SOBLINEC
SOPNICA
SOPOT
SREBRNJAK
SREDIŠĆE
SREDNJACI
STAGLIŠĆE
STARJAK
STENJEVAC
STRMEC
STRUGE
STUDENTSKI GRAD
SUSEDGRAD
SVETA KLARA
SVETI DUH
ŠALATA
ŠAŠINOVEC
ŠESTINE
ŠESTINSKI DOL
ŠESTINSKI KRALJEVEC
ŠESTINSKI VRH
ŠPANSKO
ŠTEFANOVEC
TEŠKOVEC
TRAVNO
TREŠNJEVKA
TRNAVA
TRNOVČICA
TRNSKO
TRNJE
TROKUT
TUŠKANAC
UTRINA
VELIKO POLJE
VOLOVČICA
VOLTINO
VRAPČE
VRBANI
VRBIK
VRHOVEC
VUGROVEC DONJI
VUGROVEC GORNJI
VUKOMEREC
VURNOVEC
ZADVORSKO
ZAGREB
ZAPRUĐE
ZELENGAJ
ŽITNJAK
Tipo
Tutti
Case
Appartamenti
Terreni
Uffici
Prezzo
da
a
Distanza dal mare (m)
da
a
Criterio
Più recenti
Meno recenti
Più costosi
Meno costosi
Cerca
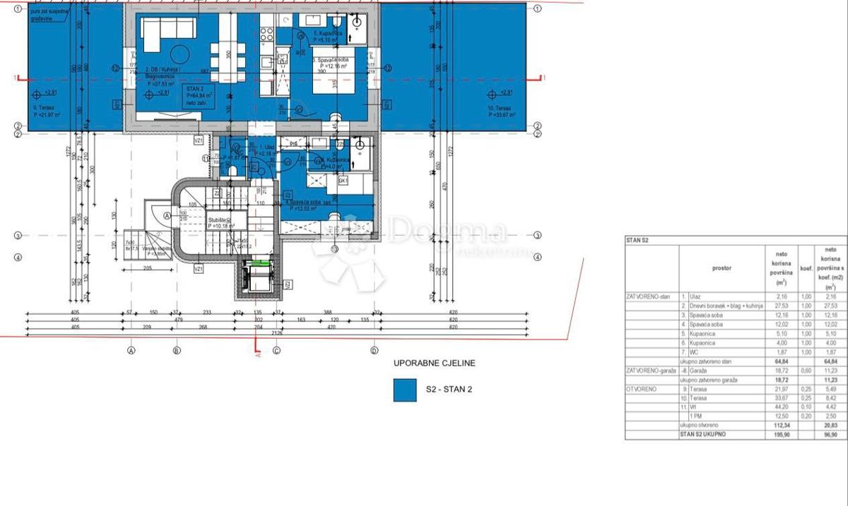
Appartamento - PANTOVČAK - 520.000 EUR
Previous
Next
Posizione
PANTOVČAK, ZAGREB, Zagabria
Prezzo €
520.000
Superficie
96 m
2
Numero di camere
3
Bagni
5
Vicino ai trasporti
Si
Distanza dal mare
0 m
ID: 1189696
Invia messaggio
Nome
E-mail
Tel.
3 + 9 =
Messaggio
Invia
Annulla