Appartamento - PEROJ - 365.000 EUR
| Posizione | PEROJ, VODNJAN, Istria |
| Prezzo € | 365.000 |
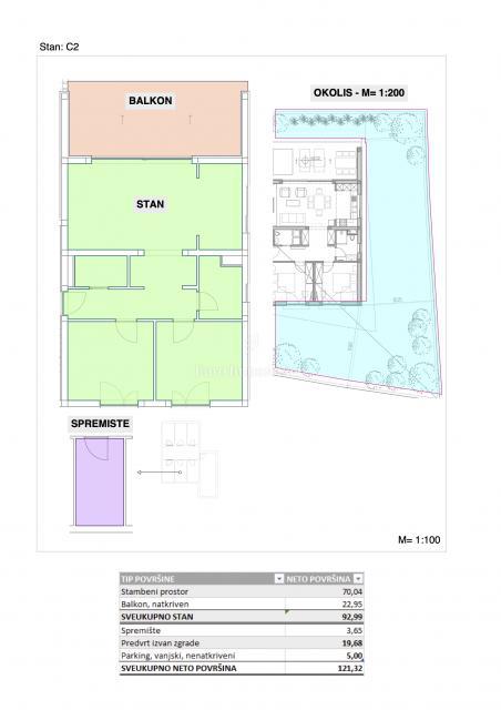
| Superficie | 113 m2 |
| Numero di camere | 3 |
| Bagni | 1 |
| Vicino ai trasporti | Si |
| Distanza dal mare | 550 m |
Situato in un nuovo edificio di alta qualità, attualmente in costruzione, questo appartamento di 113 m² è ideale per una vita familiare o come investimento redditizio. Ecco gli appartamenti più vicini al mare della zona, con facile accesso alle spiagge tramite una strada sicura e priva di traffico. Lungo la passeggiata lungomare, si possono facilmente raggiungere Fasana e Pola, con splendide viste. L'appartamento comprende 2 camere da letto, una cucina a vista, sala da pranzo e soggiorno, deposito per articoli stagionali e biciclette, una terrazza e un giardino. Dispone inoltre di 2 posti auto con possibilità di ricarica per auto elettriche, rendendolo una casa a prova di futuro. La proprietà è ordinata, 1/1. Questo appartamento è ideale sia per l'affitto che per una comoda vita quotidiana, il che lo rende una scelta eccellente per diverse esigenze. La vicinanza a destinazioni popolari come Fasana e il Parco Nazionale di Brioni ne aumenta ulteriormente il valore. Non aspettare il completamento dei lavori: gli appartamenti sono già disponibili per la prenotazione! Provizija agencije za kupca iznosi 3% + PDV i plaća se u slučaju kupovine nekretnine kod zaključenja kupoprodajnog Ugovora.
ID: 1192284