Appartamento - PLOVANIJA - 185.000 EUR
| Posizione | PLOVANIJA, ZADAR, Zara-Dalmazia-Nord |
| Prezzo € | 185.000 |
| Superficie | 42 m2 |
| Numero di camere | 2 |
| Vicino ai trasporti | Si |
| Distanza dal mare | 0 m |
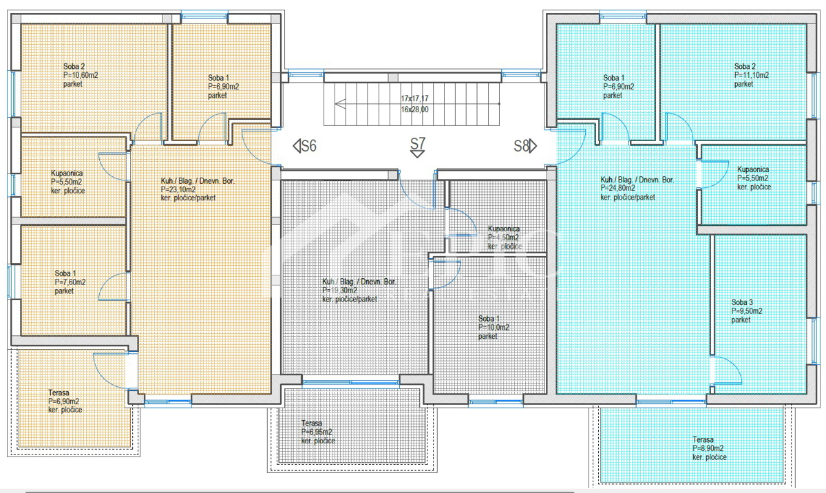
Offriamo in vendita una nuova costruzione in uno dei quartieri cittadini più richiesti, Plovanija. L’appartamento contrassegnato come S7, situato al primo piano di un edificio con otto unità abitative, è composto da cucina con sala da pranzo e soggiorno, camera da letto, bagno e terrazza coperta. All’appartamento appartengono anche due posti auto. La superficie utile totale dell’appartamento, comprensiva delle parti accessorie e pertinenze, è di 68,20 m2, mentre la superficie utile netta dell’appartamento è di 42,75 m2. Nella costruzione vengono utilizzati materiali e attrezzature di alta qualità, tra cui porte antieffrazione e tagliafuoco, riscaldamento a pavimento in tutti gli ambienti, condizionatore per riscaldamento e raffreddamento, infissi in PVC a triplo vetro. È previsto un certificato energetico di classe A+. Il termine previsto per il trasferimento è l’estate 2026. Nello stesso edificio sono disponibili anche i seguenti appartamenti: piano terra: S2 – monolocale – 207.500 € - LIBERO 1° piano: S3 – trilocale – 257.500 € - VENDUTO S4 – monolocale – 185.000 € - VENDUTO S5 – trilocale – 278.000 € - VENDUTO 2° piano: S6 – trilocale – 257.500 € - VENDUTO S8 – trilocale – 278.000 € - VENDUTO Plovanija è uno dei quartieri residenziali più richiesti e in più rapida crescita a Zadar, ideale per una vita tranquilla, confortevole e di qualità. Situato nella parte occidentale della città, Plovanija offre il perfetto equilibrio tra connettività urbana e tranquillità familiare. Nelle immediate vicinanze si trovano tutti i servizi essenziali per la vita quotidiana — negozi, scuole, asili, strutture sportive, farmacie e caffè — mentre il centro città e le spiagge cittadine sono raggiungibili in pochi minuti di auto. Un’ottima rete di trasporti permette un rapido accesso all’uscita dalla città e una facile connessione a tutte le zone di Zadar. L’acquirente NON PAGA l’imposta sulla compravendita immobiliare!! Per ulteriori informazioni o per visitare l’immobile non esitate a contattarci. Emil Perović +385 98 63 36 17 info@epic-nekretnine.com EPIC NEKRETNINE d.o.o. Polačišće 4, Zadar
ID: 1257715