Appartamento - PLOVANIJA - 207.500 EUR
| Posizione | PLOVANIJA, ZADAR, Zara-Dalmazia-Nord |
| Prezzo € | 207.500 |
| Superficie | 47 m2 |
| Numero di camere | 2 |
| Vicino ai trasporti | Si |
| Distanza dal mare | 0 m |
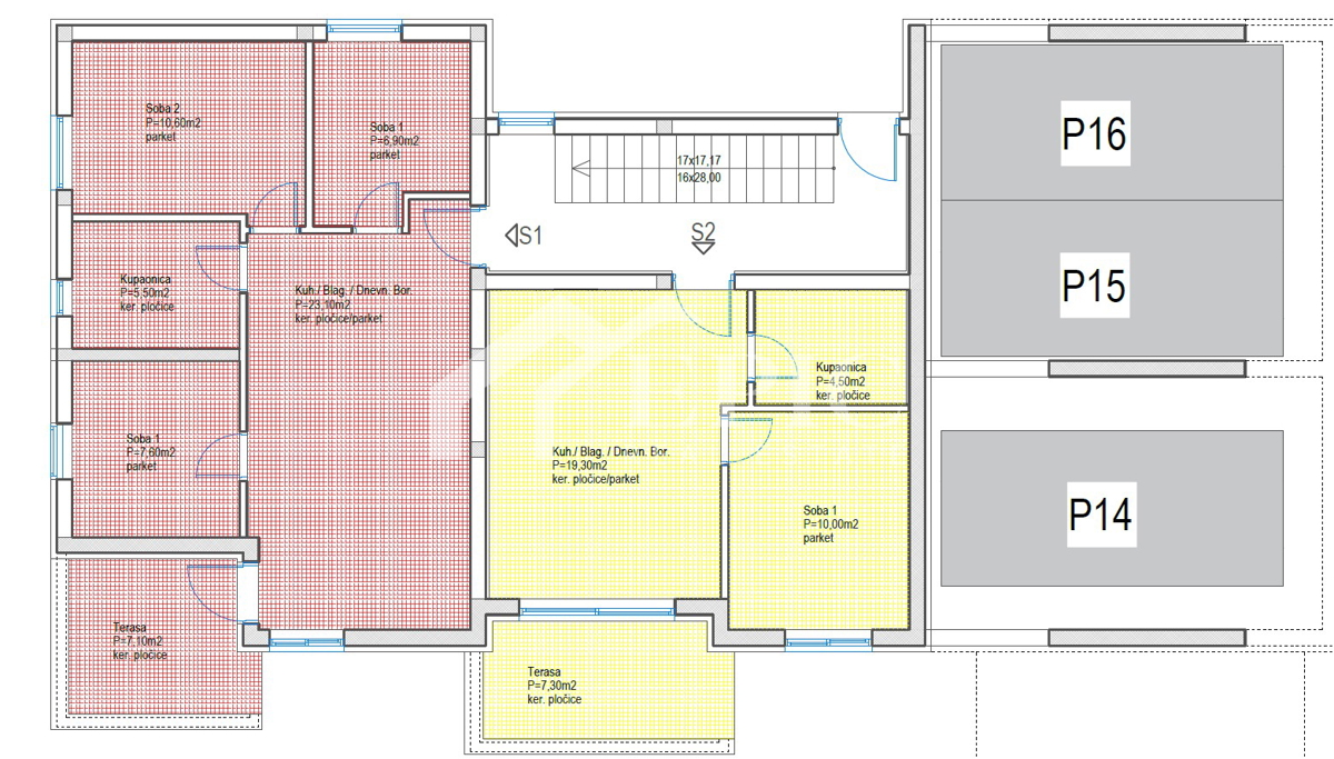
Offriamo in vendita una nuova costruzione in uno dei quartieri cittadini più richiesti, Plovanija. L’appartamento contrassegnato come S2, situato al piano terra di un edificio con otto unità abitative, è composto da cucina con zona pranzo e soggiorno, camera da letto, bagno e terrazza coperta. All’appartamento appartengono anche due posti auto. La superficie utile totale dell’appartamento S2 con le parti accessorie e pertinenze è di 118,60 m2, mentre la superficie utile totale dell’appartamento è di 47,95 m2. Nella costruzione vengono utilizzati materiali e attrezzature di alta qualità, tra cui porte antieffrazione e antincendio, riscaldamento a pavimento in tutti gli ambienti, climatizzatore per riscaldamento e raffreddamento, infissi in PVC a triplo vetro. È previsto un certificato energetico di classe A+. Il termine previsto per il trasferimento è l’estate 2026. Nello stesso edificio sono disponibili anche i seguenti appartamenti: 1° piano: S3 – trilocale – 257.500 € S4 – monolocale – 185.000 € S5 – trilocale – 278.000 € 2° piano: S6 – trilocale – 257.500 € S7 – monolocale – 185.000 € S8 – trilocale – 278.000 € Plovanija è uno dei quartieri residenziali più richiesti e in più rapida crescita a Zadar, ideale per una vita tranquilla, piacevole e di qualità. Situata nella parte occidentale della città, Plovanija offre un perfetto equilibrio tra connettività urbana e tranquillità familiare. Nelle immediate vicinanze si trovano tutti i servizi essenziali per la vita quotidiana — negozi, scuole, asili, strutture sportive, farmacie e caffè — mentre il centro città e le spiagge cittadine sono raggiungibili in pochi minuti di auto. Un’ottima connessione stradale consente un rapido accesso all’uscita dalla città e un facile collegamento a tutte le zone di Zadar. L’acquirente NON PAGA l’imposta sulle transazioni immobiliari!! Per ulteriori informazioni o per visitare l’immobile, non esitate a contattarci. Emil Perović +385 98 63 36 17 info@epic-nekretnine.com EPIC NEKRETNINE d.o.o. Polačišće 4, Zadar
ID: 1257712