Appartamento - POREČ - 273.020 EUR
| Posizione | POREČ, Istria |
| Prezzo € | 273.020 |
| Superficie | 52 m2 |
| Numero di camere | 1 |
| Bagni | 1 |
| Vicino alla spiaggia | Si |
| Distanza dal mare | 0 m |
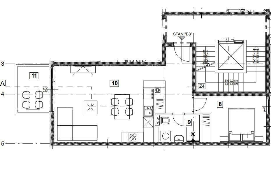
A Vabrigi, Istria, vendiamo un appartamento con una camera da letto, etichettato B3, di 52,86 m² al terzo piano. All'appartamento appartiene anche una terrazza sul tetto di 39 m² dalla quale si gode di una vista splendida sul mare. L'appartamento si trova in un edificio di un totale di 23 appartamenti, e l'edificio sarà dotato di ascensore. L'appartamento B3 di 52,86 m² è composto da: - ingresso, soggiorno, cucina e zona pranzo di 35,06 m² - terrazza coperta di 5,16 m² * coeff. 0,50 = 2,58 m² - camera da letto di 11,19 m² - bagno di 4,03 m² All'appartamento appartiene anche un ripostiglio (1,82 m² * coeff. 0,50 = 0,91 m²) al piano terra dell'edificio, la terrazza sul tetto (39 m² * coeff. 0,25 = 9,70 m²) e un posto auto. In ogni stanza è previsto un condizionatore d'aria, e riscaldamento a pavimento nel bagno. L'acquirente è esente dal pagamento dell'imposta sul trasferimento di proprietà del 3%. Siamo a disposizione per ulteriori informazioni e visite. +385 91 6115706 +385 98 420 885 azra@almadominvest.com
ID: 1261609