Appartamento - POREČ - 300.000 EUR
| Posizione | POREČ, Istria |
| Prezzo € | 300.000 |
| Superficie | 89 m2 |
| Numero di camere | 4 |
| Bagni | 3 |
| Vicino ai trasporti | Si |
| Distanza dal mare | 7000 m |
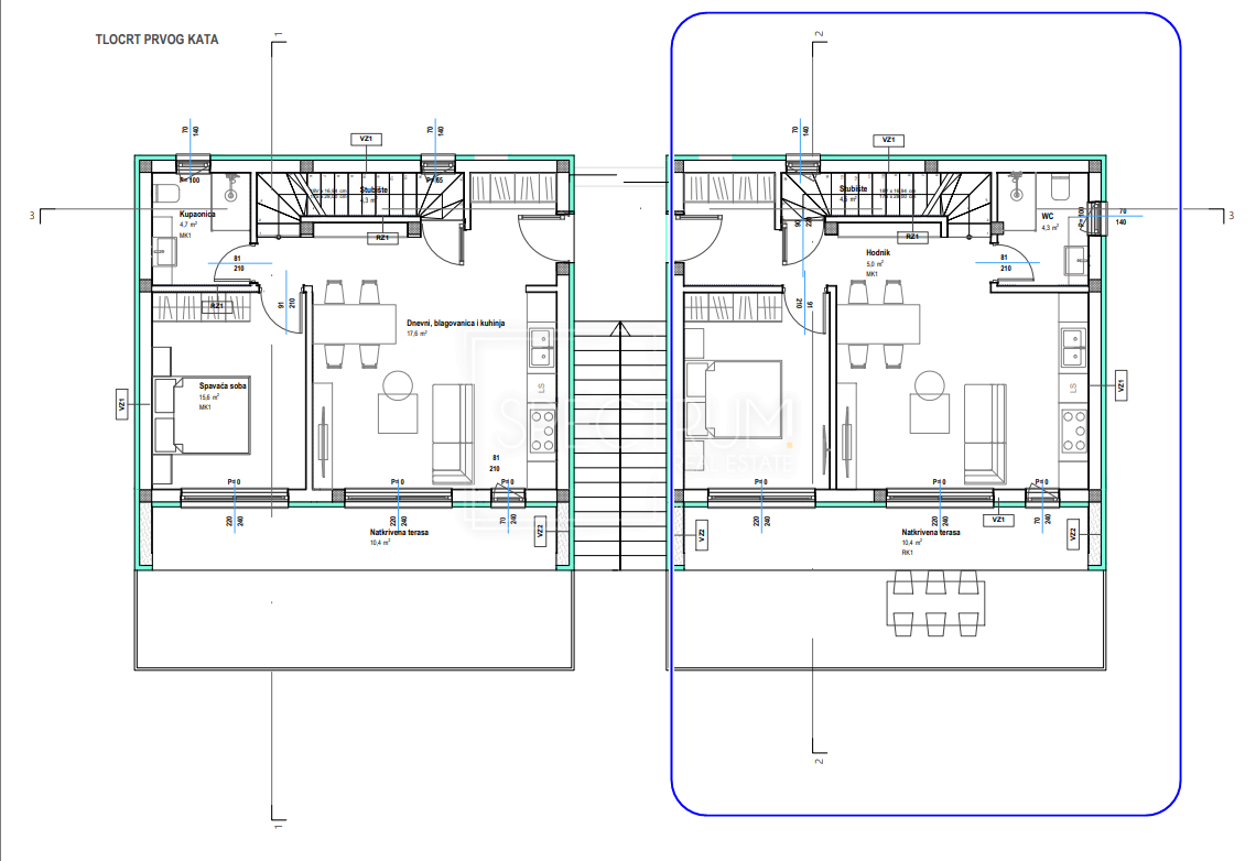
Istria, zona Parenzo Un moderno appartamento su due piani con vista mare è in vendita nella zona di Parenzo. L'appartamento si trova in un piccolo condominio con 4 unità abitative. L'appartamento si estende al 1° e 2° piano. Ha una superficie di 89 m². Al 1° piano si trova un soggiorno con cucina open space e sala da pranzo, una camera da letto e un bagno. Una scala interna conduce al 2° piano dove si trovano un disimpegno, 2 camere da letto, 2 bagni e un'ampia terrazza con una splendida vista sul mare e sul paesaggio circostante. Il riscaldamento è a pavimento e l'aria condizionata è regolabile. L'appartamento viene venduto chiavi in mano (pavimenti e servizi igienici finiti, senza mobili). Nella costruzione sono stati utilizzati materiali di alta qualità. L'appartamento è caratterizzato da ampie vetrate che lasciano entrare molta luce naturale e creano un'impressione di apertura degli spazi. L'appartamento dispone inoltre di 2 posti auto. L'appartamento si trova in una posizione privilegiata, a 7 km dal centro di Parenzo e da splendide spiagge ben curate. Nelle vicinanze si trovano ristoranti, bar, negozi, un parco, un parco giochi, passeggiate e vari altri servizi. Trattandosi di un appartamento di nuova costruzione su due piani con una splendida vista sul mare, situato nelle vicinanze di Parenzo, l'appartamento è ideale per vacanze, turismo, ma anche per viverci tutto l'anno.
ID: 1223406