Appartamento - POREČ - 330.000 EUR
| Posizione | POREČ, Istria |
| Prezzo € | 330.000 |
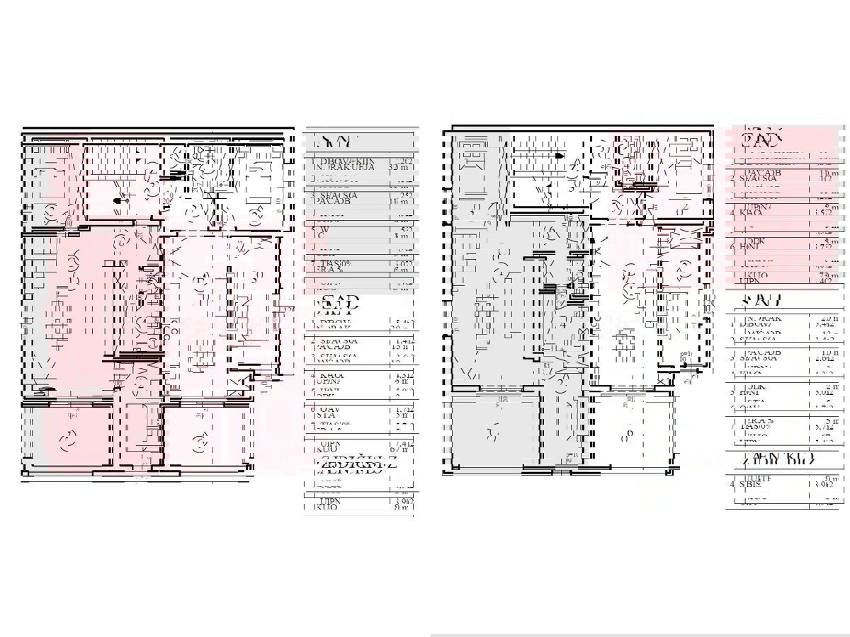
| Superficie | 73 m2 |
| Numero di camere | 2 |
| Bagni | 1 |
| Distanza dal mare | 600 m |
In una POSIZIONE ATTRAENTE, a soli 600 m dalla spiaggia e 1.000 m dal centro della città, è in vendita un appartamento trilocale in costruzione, con la superficie di 73,40 m². Situato al primo piano di un intimo edificio di sole cinque unità abitative, l'appartamento offre intimità e comfort di vita con un design moderno e una disposizione funzionale. L'appartamento è composto da:• corridoio,• soggiorno luminoso e aperto collegato alla cucina e alla sala da pranzo,• ampie vetrate che conducono alla spaziosa terrazza coperta (12,14 m²),• due comode camere da letto,• bagno moderno e toilette. L'appartamento comprende un posto auto di fronte all'edificio. Vantaggi aggiuntivi includono riscaldamento a pavimento in tutte le stanze e condizionatori d'aria inverter che forniscono una temperatura confortevole durante tutto l'anno. Nota: l'acquirente non paga l'imposta sulla compravendita dell'immobile (3% del prezzo di acquisto). Questa offerta è una rara opportunità, un appartamento moderno in un'ottima posizione a Parenzo - una perfetta combinazione di lusso, funzionalità e vicinanza al mare!
ID: 1104776