Appartamento - POREČ - 363.400 EUR
| Posizione | POREČ, Istria |
| Prezzo € | 363.400 |
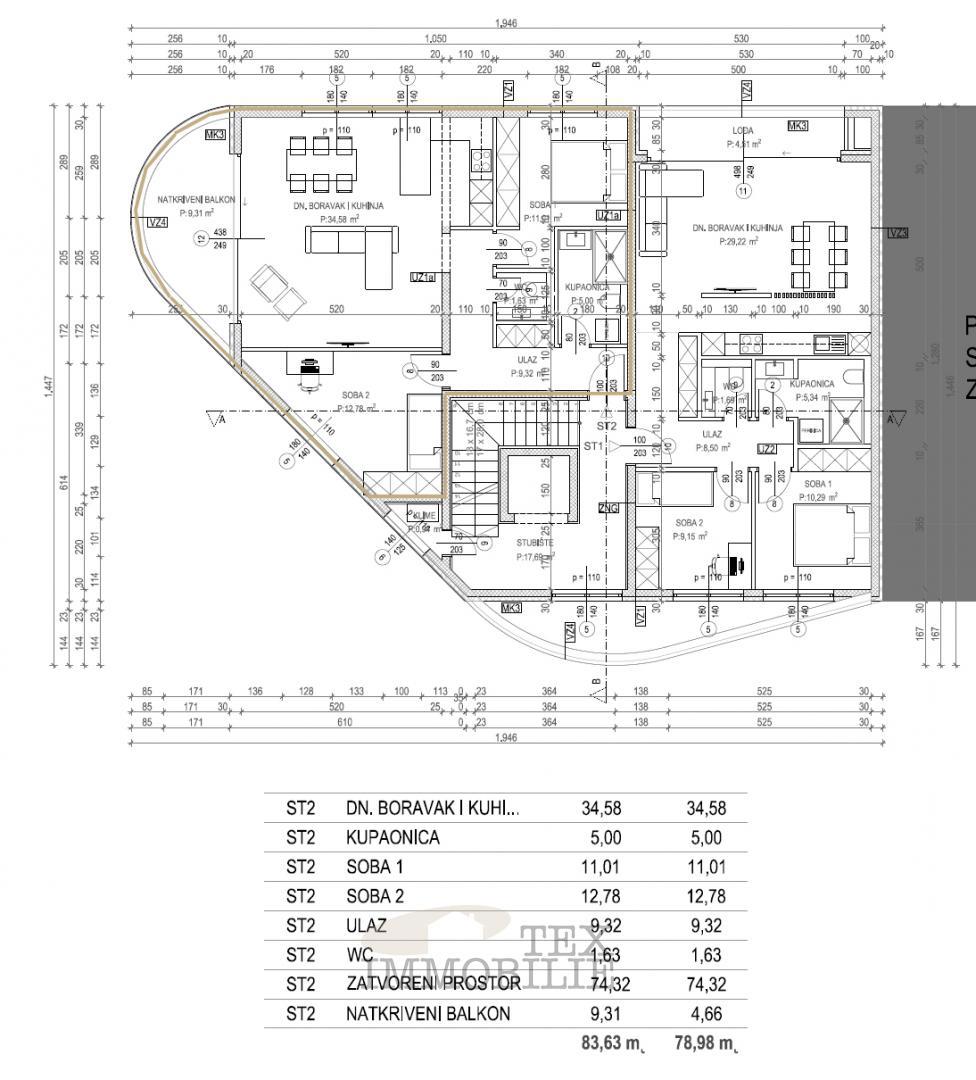
| Superficie | 79 m2 |
| Numero di camere | 3 |
| Bagni | 2 |
| Distanza dal mare | 2000 m |
In vendita appartamento di 79 m² di superficie netta, situato al terzo piano di una nuova costruzione in una zona tranquilla nei dintorni di Parenzo, a pochi minuti di auto dal mare e dai principali servizi cittadini. L’immobile fa parte di un moderno edificio residenziale-commerciale composto da dodici unità abitative e due spazi commerciali, distribuiti su pianoterra e tre piani. La disposizione interna comprende un luminoso soggiorno collegato alla cucina e alla zona pranzo, due camere da letto, un bagno moderno, un WC separato e un ampio terrazzo con una bella vista sul mare. L’appartamento dispone inoltre di due posti auto esterni. L’edificio sarà dotato di ascensore, mentre gli appartamenti avranno infissi in PVC di alta qualità con sei camere, vetri tripli, zanzariere e tapparelle elettriche. Sono previsti portoncini blindati, videocitofono, riscaldamento a pavimento in tutti gli ambienti tramite pompa di calore e climatizzazione in ogni stanza. La scelta della ceramica di prima classe è personalizzabile, secondo i gusti dell’acquirente. Il completamento dei lavori, il certificato di agibilità e la suddivisione catastale sono previsti per marzo 2027. L’IVA è inclusa nel prezzo, per cui l’acquirente non paga l’imposta di trasferimento immobiliare. Nelle immediate vicinanze si trovano scuola, asilo, farmacia, bar, ristoranti e centri commerciali, rendendo questa proprietà ideale per una famiglia, un investimento turistico o un investimento a lungo termine.
ID: 1240605