Appartamento - POREČ - 400.000 EUR
| Posizione | POREČ, Istria |
| Prezzo € | 400.000 |
| Superficie | 122 m2 |
| Numero di camere | 3 |
| Bagni | 2 |
| Distanza dal mare | 9000 m |
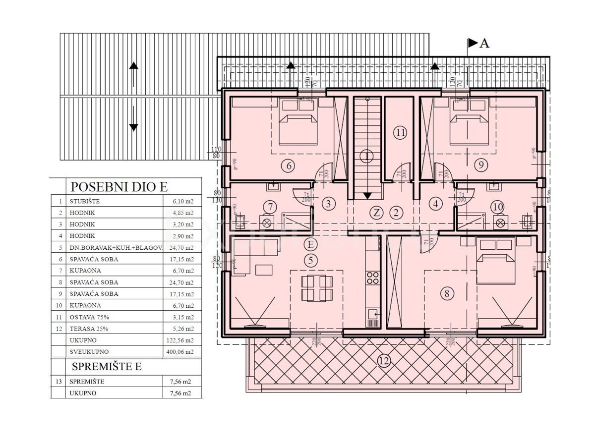
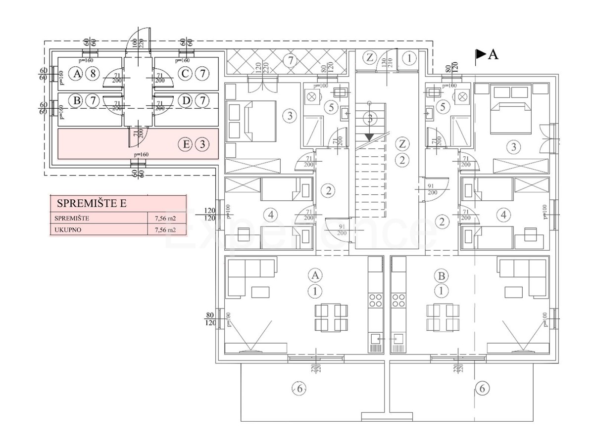
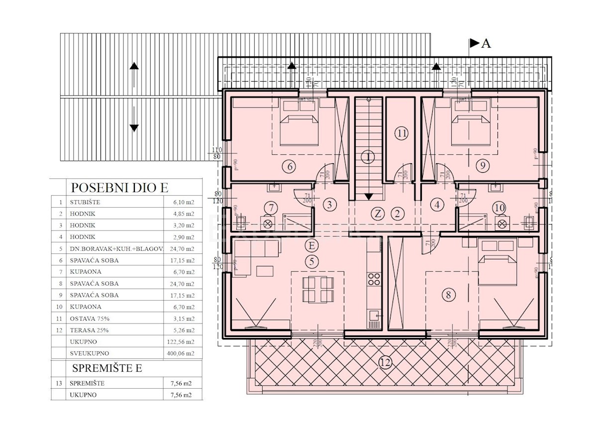
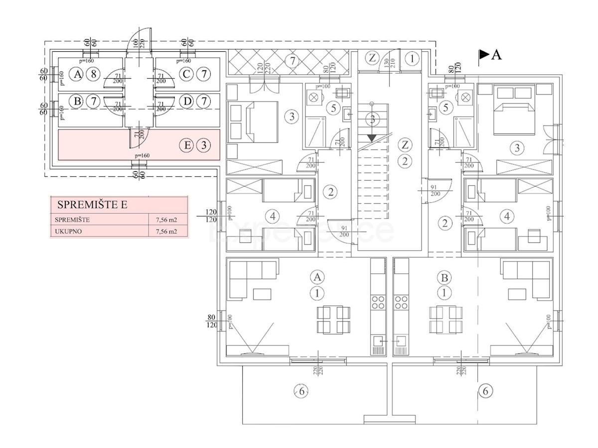
Nelle vicinanze di Parenzo - cca. 9 km dal mare e dalla città, in un ambiente tranquillo si trova un attico in costruzione, con la superficie di 122,56 m². L'attico è situato al secondo ed ultimo piano di un intimo edificio residenziale di sole 5 unità abitative. Comprende: corridoio, spazio aperto e luminoso in cui sono situati soggiorno, cucina e sala da pranzo con accesso ad un spazioso terrazzo (21.04 m²), tre camere da letto, due bagni e un ripostiglio (3.15 m²). L'appartamento dispone inoltre di un deposito (7.56 m²) situato al piano terra dell'edificio. Il riscaldamento e il raffrescamento sono regolati con climatizzatori, e riscaldamento a pavimento in bagno. Il completamento previsto della costruzione è fino a 15. agosto 2025. Notando, non si paga la tassa di trasferimento immobiliare per un importo di 3% dal prezzo di acquisto concordato.
ID: 1066648