Appartamento - POREČ - 435.000 EUR
| Posizione | POREČ, Istria |
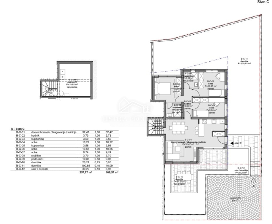
| Prezzo € | 435.000 |
| Superficie | 106 m2 |
| Numero di camere | 4 |
| Bagni | 2 |
| Vicino ai trasporti | Si |
| Distanza dal mare | 1500 m |
Questo appartamento al piano terra con cortile, ingresso indipendente e cantina si trova in una posizione ricercata in un complesso residenziale residenziale con edifici moderni. L'appartamento è composto da un piccolo corridoio con guardaroba che conduce a un ampio soggiorno con cucina e zona pranzo, con uscita sulla terrazza e sul giardino anteriore che circonda l'appartamento. Le pareti in vetro sono state installate in tutto il soggiorno, consentendo un ampio afflusso di luce. L'appartamento dispone inoltre di 3 camere da letto con uscita sul giardino posteriore, un bagno, un ulteriore WC e una cantina. L'appartamento dispone di 2 posti auto nel cortile, collegati a un ingresso separato che sarà utilizzato esclusivamente da questo appartamento, garantendo ai nuovi proprietari privacy e tranquillità, e la separazione dagli altri inquilini. L'intero appartamento è dotato di riscaldamento a pavimento con pompa di calore e di aria condizionata. L'IVA è inclusa nel prezzo dell'appartamento e l'acquirente non paga l'imposta sugli immobili. Una posizione eccellente per chi sa riconoscere le giuste opportunità e la qualità sono un investimento ideale per un soggiorno di qualità e confortevole. La proprietà può essere visitata esclusivamente dopo la firma di un contratto di mediazione, che costituisce la base per la procedura successiva in relazione all'acquisto e alla vendita, nonché per l'addebito della provvigione secondo la legge sulla mediazione immobiliare. Nel caso di un contratto di acquisto, la commissione di mediazione è del 3% senza IVA e viene addebitata sia al compratore che al venditore al momento della firma del preliminare/contratto di acquisto.
ID: 1239145