Appartamento - POREČ - 437.750 EUR
| Posizione | POREČ, Istria |
| Prezzo € | 437.750 |
| Superficie | 130 m2 |
| Numero di camere | 3 |
| Bagni | 3 |
| Distanza dal mare | 0 m |
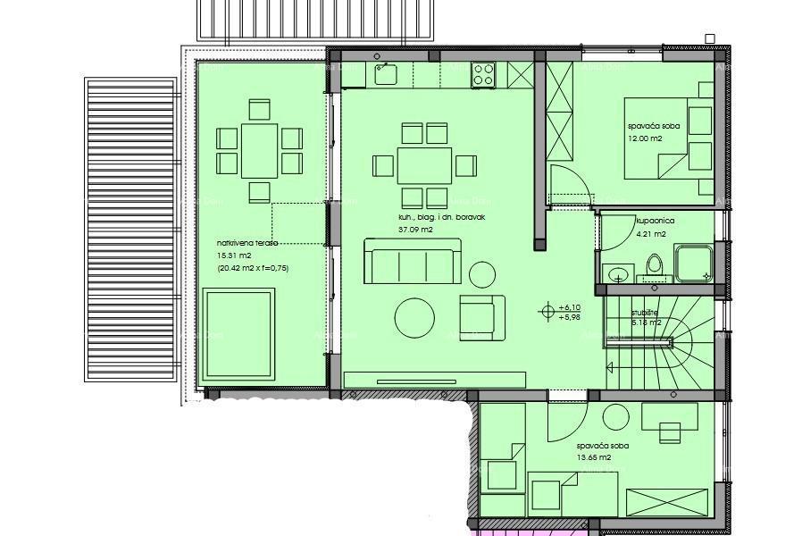
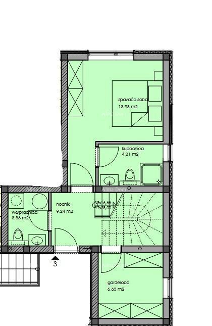
Vendiamo un lussuoso appartamento con una vista mozzafiato sul mare! L'appartamento si trova in un edificio con un totale di 4 appartamenti. Si sviluppa su 2 piani. Al piano inferiore dell'appartamento contrassegnato con il numero 3 si trovano un corridoio, una lavanderia con WC, un'ampia cabina armadio separata e una camera da letto con bagno privato. Dal corridoio, una scala conduce al piano superiore dell'appartamento, dove si trovano un soggiorno con cucina e zona pranzo open space con accesso a una spaziosa terrazza coperta, attrezzata per l'uso di un jacuzzi, 2 camere da letto e un bagno. Piano inferiore dell'appartamento 3 (primo piano dell'edificio): - Corridoio 9,24 m2 - Camera da letto 13,93 m2 - Bagno 4,21 m2 - WC/lavanderia 3,36 m2 - Cabina armadio 6,63 m2 - Scala 5,18 m2 Piano superiore dell'appartamento 3: - Cucina, zona pranzo e soggiorno 37,09 m2 - Terrazza coperta 20,42 m2 * coeff. 0,75 = 15,32 m2 - Camera da letto 12,00 m2 - Camera da letto 13,65 m2 - Bagno 4,21 m2 TOTALE APPARTAMENTO 3 - 124,82 m2 Posto auto 3 - 12,50 m2 * coeff. 0,50 = 2,50 m2 Ripostiglio 3 - 6,51 m2 * coeff. 0,50 = 3,26 m2 TOTALE 130,57 m2 La consegna è prevista per maggio 2024. Chiamateci e prenotate l'appartamento! Info: +385 91 611 5706 +385 98 420 885 azra@almadominvest.com
ID: 1197734