Appartamento - POREČ - 460.000 EUR
| Posizione | POREČ, Istria |
| Prezzo € | 460.000 |
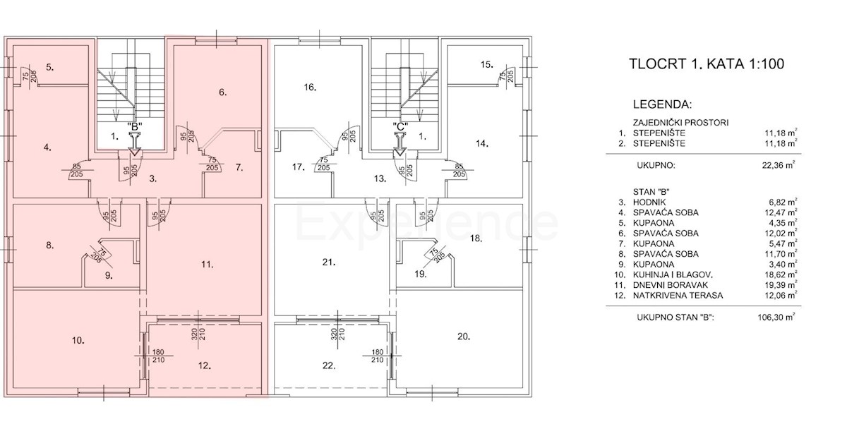
| Superficie | 110 m2 |
| Numero di camere | 4 |
| Bagni | 3 |
| Distanza dal mare | 0 m |
IN UNA POSIZIONE ATTRAENTE, a Parenzo - ca. 600 metri dalla spiaggia, è in vendita un appartamento, con la superficie totale di 103.29 m². L'appartamento è situato al primo piano di un edificio residenziale di nuova costruzione. L'appartamento comprende: corridoio, soggiorno, cucina e sala da pranzo con accesso ad un spazioso terrazzo coperto (12.06 m²), tre camere da letto ciascuna con proprio bagno. Dalla terrazza si estende parzialmente la vista sul mare. L'appartamento dispone inoltre di un deposito (6.68 m²) al piano terra dell'edificio e di 2 posti auto. Il riscaldamento e il raffreddamento sono regolati con climatizzatori ed è installato il riscaldamento a pavimento nel soggiorno, nella cucina e nei bagni. Con una nota, con l'acquisto del immobile, non viene pagata l'imposta sul trasferimento immobiliare.
ID: 980470