Casa - POREČ - 1.050.000 EUR
| Posizione | POREČ, Istria |
| Prezzo € | 1.050.000 |
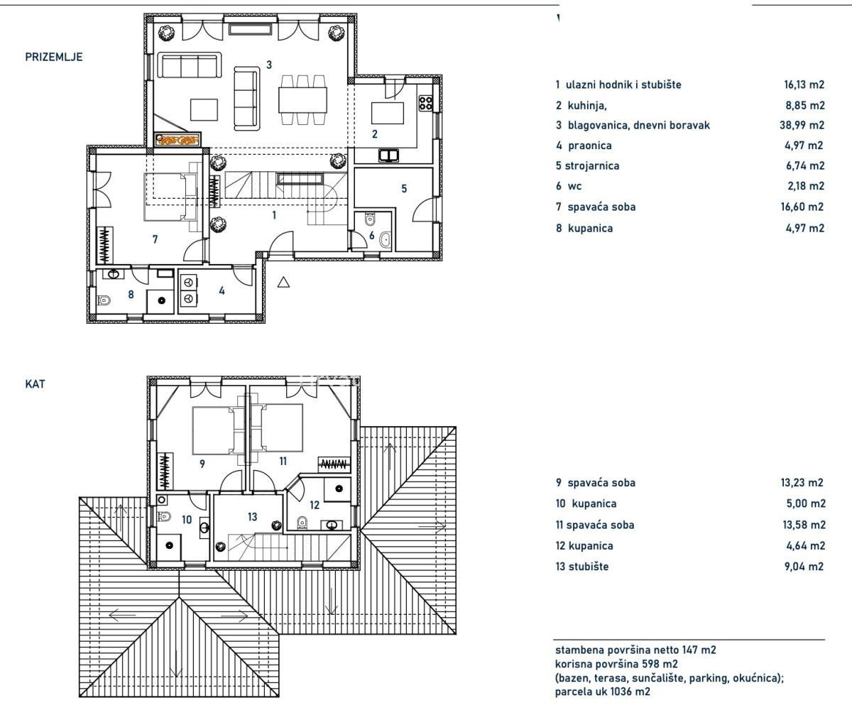
| Superficie | 147 m2 |
| Numero di camere | 4 |
| Superficie terrestre | 1036 m2 |
| Bagni | 3 |
| Distanza dal mare | 0 m |
PARENZO, DINTORNI, VILLA INDIPENDENTE CON PISCINA Vendiamo una moderna villa indipendente con piscina a soli 4 km dal mare e dalle bellissime spiagge, a 6 km dalla città di Parenzo. La villa con una superficie netta complessiva di 147 mq si estende su due piani: piano terra e primo piano. Il piazzale così sistemato e formato ha una superficie di 1.036 mq. Il piano terra è composto da ingresso e scala, soggiorno con cucina a vista e sala da pranzo, una camera da letto con proprio bagno, locale macchine, lavanderia e servizi igienici. Dal soggiorno e dalla cucina si accede direttamente alla terrazza coperta, al giardino e alla piscina con solarium. Al primo piano troviamo un disimpegno con scala, due camere da letto, ciascuna con il proprio bagno. La proprietà è stata costruita con materiali da costruzione di alta qualità. Il cliente ha la possibilità di scegliere i materiali di finitura sotto forma di piastrelle in ceramica, pavimenti in legno, colori, attrezzature e simili. Gli infissi sono in alluminio a tre strati, con tapparelle elettriche e zanzariere. La casa sarà dotata di pompa di calore e riscaldamento a pavimento, oltre ad un completo sistema di raffreddamento. Zona piscina 40 mq e spiaggia con solarium, doccia esterna 50 mq. La villa viene venduta completamente rifinita e funzionale. Completamento stimato 3/2015. Considerata l'attraente posizione, la vicinanza al mare e la vicinanza di tutti i servizi essenziali, questa proprietà è ideale sia per vacanza che per uso abitativo, nonché per locazione a scopo turistico. L'acquirente non paga l'importo dell'imposta sul trasferimento immobiliare del 3%.
ID: 1119331