Casa - POREČ - 1.250.000 EUR
| Posizione | POREČ, Istria |
| Prezzo € | 1.250.000 |
| Superficie | 267 m2 |
| Numero di camere | 5 |
| Superficie terrestre | 1015 m2 |
| Bagni | 5 |
| Distanza dal mare | 3000 m |
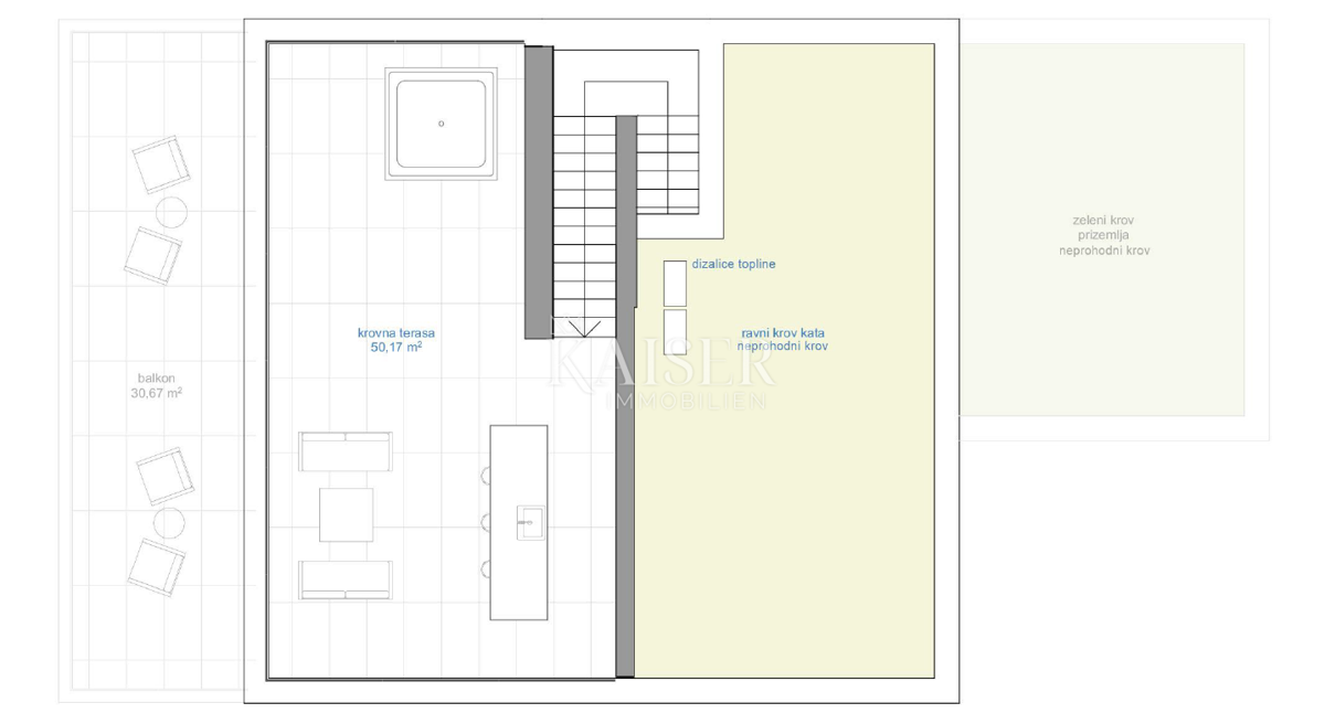
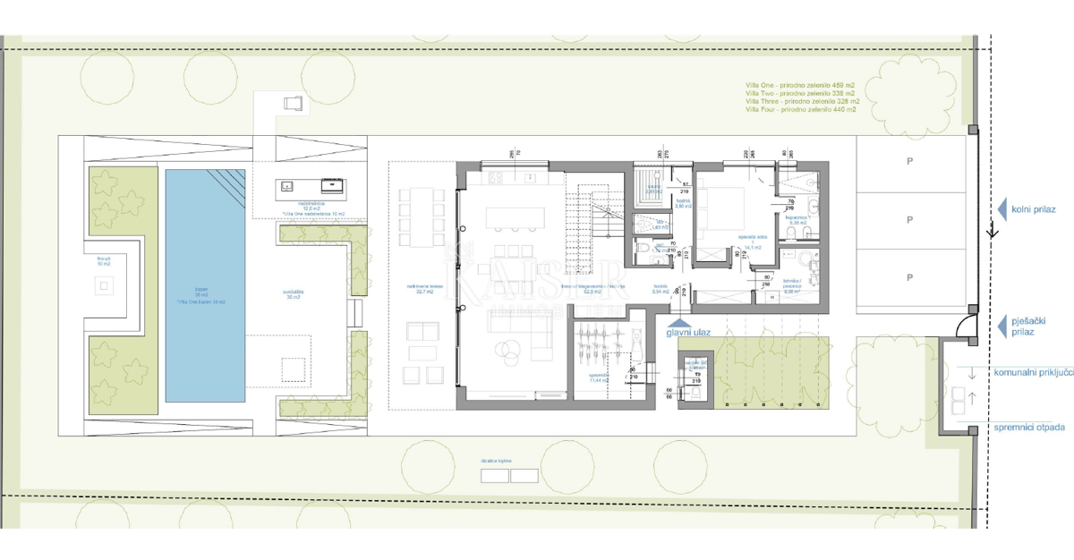
Kaiser Immobilien è orgogliosa di presentare una moderna e lussuosa villa indipendente situata a soli 5 km dalla città di Parenzo, che viene venduta completamente arredata. La villa è situata in una rinomata località turistica nei pressi della città di Parenzo, immersa nella natura più completa, nella pace e nella tranquillità e tuttavia vicina a tutti i comfort necessari per la vita. La villa è stata costruita con materiali di prima qualità, prestando attenzione a ogni dettaglio per rendere la vita nella villa il più semplice e lussuosa possibile per il futuro proprietario. La villa è completamente attrezzata e viene venduta così com'è. La villa soddisfa tutti i requisiti del permesso e può anche essere affittata. Superficie lorda della villa: 267 m2 Superficie netta della superficie abitabile interna: 204 m2 Parcheggio: la villa dispone di 3 posti auto per auto e uno per biciclette Piscina - 30 m2 di superficie d'acqua Classe energetica: A (20 kWh/m2 all'anno) Piani: P+1 (piano terra + primo piano), realizzata in stile classico. Nuova costruzione. Vista mare. Il piano terra è composto da un ingresso, una scala che conduce al primo piano e alla terrazza sul tetto, un soggiorno, una cucina e una sala da pranzo, una camera da letto con bagno separato, un ulteriore bagno, un bagno e una sauna, locali tecnici con lavanderia e ripostiglio e un bagno esterno, ciascuno con un ingresso separato. Al primo piano si trovano una scala, un disimpegno, tre camere da letto con bagni separati e uno studio completamente arredato. Scalinata per accedere alla terrazza sul tetto, dotata di bar all'aperto, terrazza solarium e vasca idromassaggio. L'area circostante comprende una piscina esterna riscaldata, un'area solarium, una terrazza coperta per pranzare, una tettoia con cucina estiva e una terrazza scoperta proprio accanto alla piscina. Nella parte inferiore del cortile c'è un focolare. Nel cortile è presente anche una doccia esterna di design con acqua calda e scarico a pavimento. La struttura portante dell'edificio principale poggia su fondamenta continue, mentre le pareti sono una combinazione di muratura in blocchi di mattoni e cemento armato. I solai del pavimento e del tetto sono in cemento armato. Pensilina esterna realizzata con struttura in acciaio. Le pareti divisorie sono realizzate in modo classico con mattoni a blocchi. La potenza elettrica acquistata è di 18,86 kW – trifase. Serramenti esterni: serramenti in alluminio di grande formato. Profilo in alluminio - ALIPLAST. Pietra di Canfanaro tagliata a mano, spessore 5 cm. Riscaldamento: Vaillant, pompa di calore aria-acqua esterna alimentata elettricamente. Riscaldamento a pavimento in tutte le stanze occupate con regolatori separati per stanza/bagno. Controllo remoto possibile tramite rete Wi-Fi. Dotazione: • Apparecchiature sanitarie Duravit di alta qualità, rubinetti Grohe, sistemi di scarico Geberit e Tece, cassette di scarico Grohe, doccia walk-in. • Ceramiche di altissima qualità dei più noti produttori italiani (Graniti Fiandre, Panaria, Keope, Love). Nei bagni, le ceramiche di grande formato sono installate fino al soffitto. • Sistema di addolcimento dell'acqua integrato dalla rete idrica. • Videocitofono Hikvision nero con controllo di apertura porta d'ingresso e controllo elettrico. cancello. • Caricabatterie Wallbox per la ricarica di auto elettriche, marca Mercedes-Benz, fino a 22 kW di potenza. • Biocamino nel soggiorno. • Ringhiera in vetro sul balcone e sulla terrazza sul tetto. Cucina e arredamento • Cucina DanKüchen, modello Silbermond in versione antracite - cucina e isola, con piano di lavoro in ceramica Sapienstone – Fior di Bosco da 12 mm di spessore. • La cucina è dotata di tutti gli elettrodomestici da incasso necessari, marca Bosch (forno, microonde, piano cottura, lavastoviglie e frigorifero combinato). • Sauna finlandese realizzata su misura, rivestita in abete Kyte Thermo e illuminazione a LED. Area cortile della villa: Terrazza antistante il soggiorno Tettoia a bordo piscina • Barbecue a gas Kingstone integrato con 4 fuochi, 14 kW, nel bar esterno. Piscina • Piscina a skimmer rivestita con rivestimento decorativo, Duraston – versione blu scuro. • Riscaldamento della piscina tramite pompa di calore Gardena PAC da 17 kW. Focolare • Area salotto ulteriormente illuminata da luce LED indiretta. Terrazza sul tetto • Vasca idromassaggio Wellis, con copertura. Modello per 5 persone e 42 ugelli, con set iniziale di prodotti chimici e attrezzatura per la manutenzione. • Bar esterno attrezzato con lavello Franke e piano di lavoro in ceramica Laminam. Mini centrale elettrica • Centrale solare con potenza di 3,6 kW (*retrofit) Giardino orticolo completamente paesaggistico con sistema di irrigazione e illuminazione decorativa. Vicinanza ai servizi: 3 km - spiaggia 5 km - negozi Parenzo 11 minuti - parco acquatico Parenzo 2 ore - Venezia 50 minuti - Parco nazionale di Brioni 50 minuti - Arena di Pola. Prezzo della villa: € 1.250.000 (*Il prezzo di listino si applica alle persone giuridiche nel sistema IVA, mentre per le persone fisiche viene calcolata la voce IVA. In questo caso, il prezzo dell'immobile è di € 1.560.000,00. L'acquirente è esente dal pagamento dell'imposta immobiliare.) Se stai cercando la tua nuova casa, contattaci con fiducia a: telefono: 00385923782803 indirizzo e-mail: ivana@kaiser-immobilien.hr. Venditore: Ivana Gašparini. La commissione d'agenzia è pari al 3% + IVA e viene addebitata al primo atto legale.
ID: 1241310