Casa - POREČ - 1.250.000 EUR
| Posizione | POREČ, Istria |
| Prezzo € | 1.250.000 |
| Superficie | 323 m2 |
| Numero di camere | 6 |
| Superficie terrestre | 958 m2 |
| Bagni | 7 |
| Distanza dal mare | 0 m |
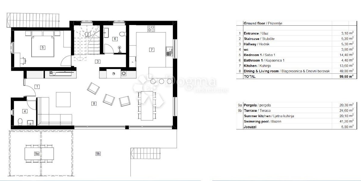
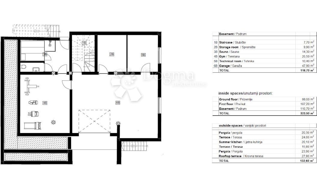
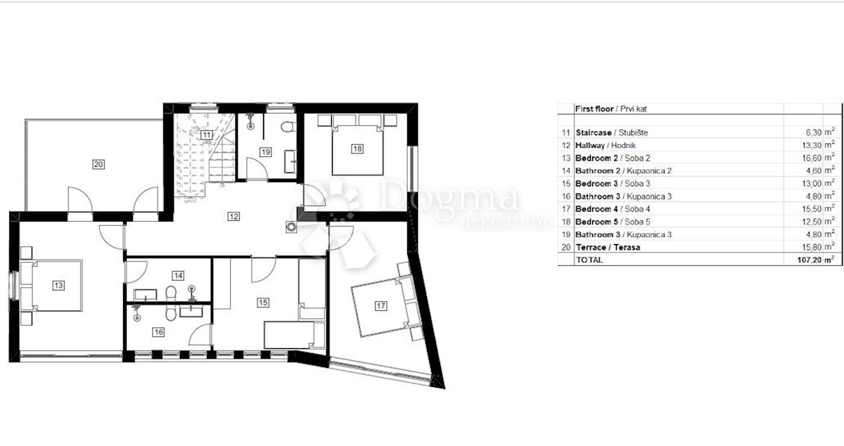
Parenzo, dintorni, In vendita è una bellissima proprietà situata vicino a Parenzo con vista sul mare aperto. Questa imponente proprietà si trova a soli 10 minuti di auto da Parenzo ed è attualmente in costruzione, con una data di completamento stimata del 5/'24, offrendo l'opportunità di possedere una casa nuova di zecca. L'immobile si sviluppa su un terreno di 958 mq ed è composto da seminterrato, piano terra, primo piano e mansarda. 0. Il seminterrato offre una varietà di opportunità per il relax e la ricreazione, tra cui sauna, area fitness, deposito, ripostiglio e garage per 2 auto. 1. Il piano terra è composto da un bagno, toilette per gli ospiti, una camera da letto, cucina e ampio soggiorno con sala da pranzo. Dal soggiorno si accede alla terrazza, collegata alla piscina. La terrazza ha una cucina estiva, un pergolato e una vasca idromassaggio a bordo piscina, creando l'ambiente perfetto per godersi la vita all'aria aperta. 2. Al primo piano ci sono quattro camere da letto e tre bagni, offrendo spazio sufficiente per la famiglia e gli ospiti. 3. L'intero lastrico solare è concepito come un solarium, con un pergolato parzialmente coperto, che permette di godere di una vista panoramica sul mare e sul paesaggio circostante. Due posti auto sono forniti di fronte alla casa per comodità. La casa ha una superficie totale di 323,50 m2 e viene venduta chiavi in mano, il che significa che sarà completamente finita e attrezzata prima che tu ne diventi proprietario. Godersi giornate calde è garantito grazie alla piscina di 41,20 m2 e alla vasca idromassaggio di 5,80 m2 accanto alla piscina. Per il comfort durante i periodi più freddi, è previsto il riscaldamento a pavimento in tutta la casa, mentre saranno installati condizionatori d'aria per rinfrescare l'ambiente. Questa proprietà rappresenta una combinazione ideale di lusso, comfort e una splendida vista sul mare. Si trova in un ambiente tranquillo, ma con un rapido accesso a tutti i servizi offerti da Poreč. Il prezzo include l'IVA. Contattaci e prenota il tuo appuntamento per visionare questo splendido immobile. Contatta con fiducia, Leonida Meglaj agente autorizzato +385 95 905 98 98
ID: 960050