Casa - POREČ - 1.350.000 EUR
| Posizione | POREČ, Istria |
| Prezzo € | 1.350.000 |
| Superficie | 250 m2 |
| Numero di camere | 5 |
| Superficie terrestre | 1020 m2 |
| Bagni | 4 |
| Distanza dal mare | 0 m |
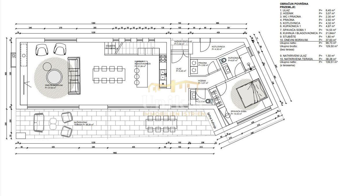
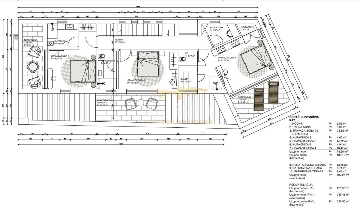
Moderna villa con vista mare in una posizione unica, in una località con tutta l'infrastruttura necessaria, a 12 km da Poreč. Al piano terra si trovano ingresso, wc, lavanderia, centrale termica, soggiorno con cucina e sala da pranzo, camera da letto, bagno e terrazza coperta. Al piano superiore si trovano corridoio, studio, tre camere da letto e tre bagni, una terrazza coperta e una scoperta. Il riscaldamento sarà elettrico a pavimento e la casa sarà dotata di condizionatori d'aria. Nel terreno sarà presente una piscina di 49 m2. La proprietà è nel sistema IVA e l'IVA è inclusa nel prezzo di vendita.
ID: 1253109