Casa - POREČ - 215.000 EUR
| Posizione | POREČ, Istria |
| Prezzo € | 215.000 |
| Superficie | 108 m2 |
| Numero di camere | 4 |
| Superficie terrestre | 450 m2 |
| Bagni | 2 |
| Vicino ai trasporti | Si |
| Distanza dal mare | 0 m |
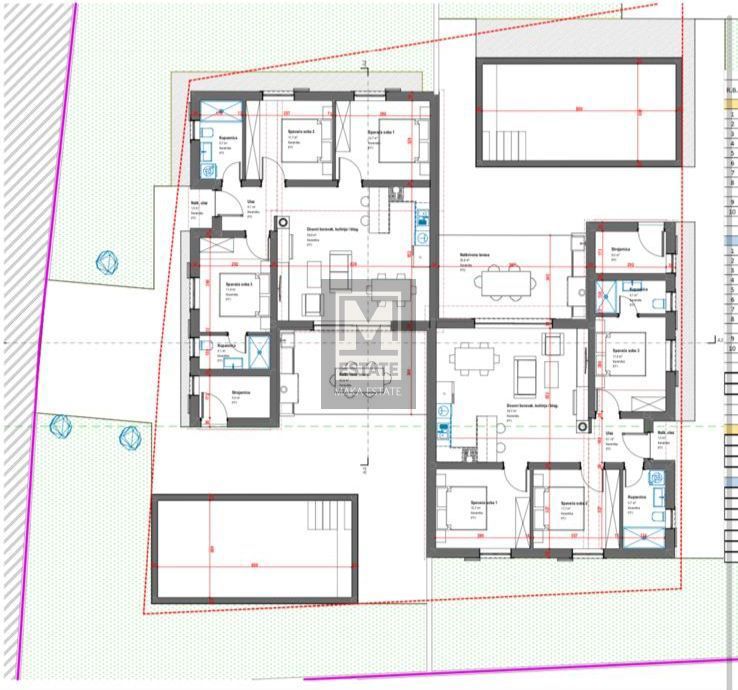
Parenzo, dintorni, moderna casa unifamiliare in fase di costruzione grezza, posizione interessante! In un quartiere tranquillo e ben curato, non lontano da Parenzo, è in vendita una moderna casa unifamiliare in fase di costruzione grezza, ideale per gli acquirenti che desiderano personalizzare la propria casa secondo i propri desideri. La casa è progettata su un unico piano e offre una disposizione funzionale: ingresso, ampio soggiorno open space con cucina e sala da pranzo, tre camere da letto (una con bagno privato) e un ulteriore bagno. La zona giorno offre accesso a una terrazza coperta. Il terreno consente la costruzione di una piscina e di una zona prendisole secondo i desideri dell'acquirente. I lavori di costruzione sono iniziati il 1° giugno 2025 e l'acquirente ha la possibilità di concordare i materiali di finitura e ulteriori modifiche. L'immobile viene venduto in fase di costruzione grezza, il che offre un'eccellente opportunità di personalizzare gli spazi. La posizione è ben collegata e negozi, ristoranti e spiagge sono raggiungibili in pochi minuti di auto. Questa casa a un piano è la scelta ideale per chi cerca una casa moderna in costruzione vicino a Parenzo, con la flessibilità di completarla secondo i propri desideri. L'IVA NON È INCLUSA NEL PREZZO!
ID: 1239869